RENNES quartier Lorient - Saint-Brieuc - T2 de 43 m2
Rennes 35000
0
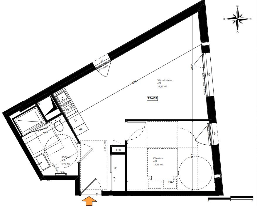
COGIR Neuf vous propose : RENNES quartier Lorient - Saint-Brieuc - A proximité immédiate des commerces et du mail François Mitterrand, venez découvrir cette Résidence rayonnante de 40 appartements pour habiter ou investir. Vous y trouverez cet appartement T2 de 43 m² au 2eme étage comprenant : une entrée avec un cellier, un séjour/cuisine de 19 m² donnant sur un balcon d'environ 10 m2, des WC séparés et une suite parentale de 11 m2 accompagnée de sa salle d'eau. L'appartement dispose également d'une place de parking. Mesures fiscales : PINEL / L.M.N.P T1 à partir de 190 000.00 euros TTC T2 à partir de 250 000.00 euros TTC T3 à partir de 365 000.00 euros TTC T4 à partir de 695 000.00 euros TTC Corinne BOUFFORT : 06.08.47.94.30 / CBN9816