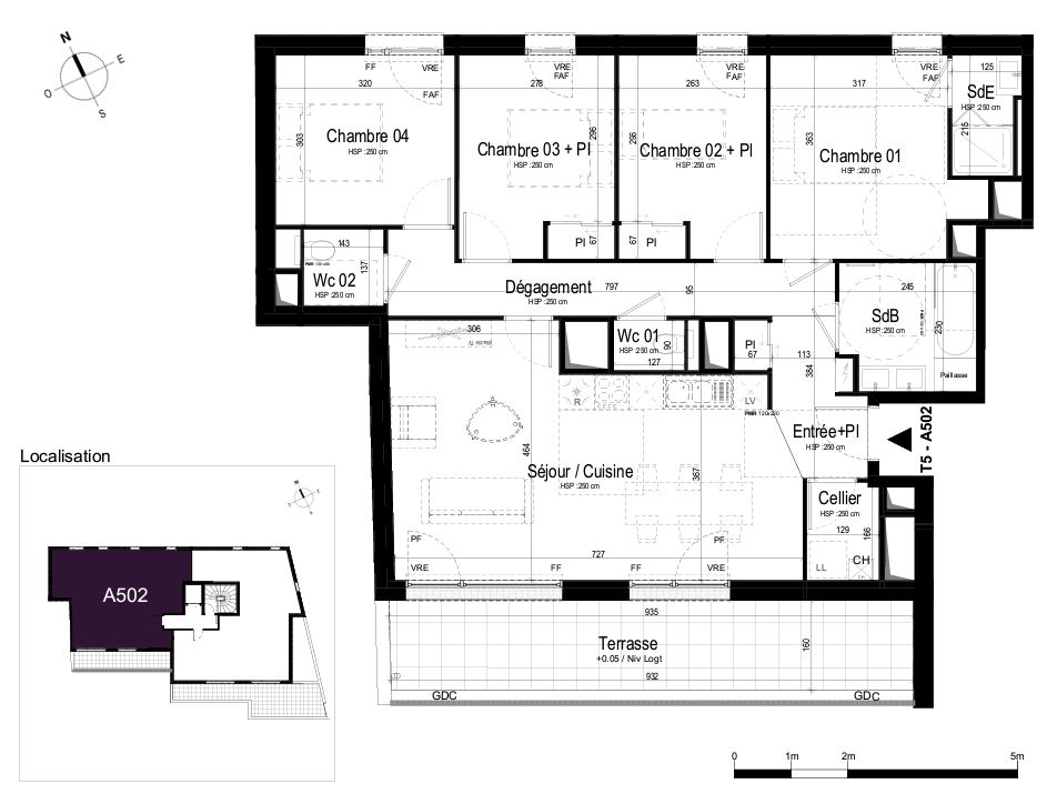
RENNES quartier Lorient - Saint-Brieuc - T4 de 105 m2
Rennes 35000
0
COGIR Neuf vous propose : RENNES quartier Lorient - Saint-Brieuc - A proximité immédiate des commerces et du mail François Mitterrand, venez découvrir cette Résidence rayonnante de 40 appartements pour habiter ou investir. Vous y trouverez cet appartement T4 de 105 m² au 5eme étage comprenant : une entrée, une salle de bain, un WC séparé ainsi qu'un séjour/cuisine de 47 m², 2 chambres et une suite parentale donnants sur un balcon de 33 m2 exposé plein sud. L'appartement dispose également d'une terrasse de 32 m2 ainsi que d'un garage box. Mesures fiscales : PINEL / L.M.N.P T1 à partir de 190 000.00 euros TTC T2 à partir de 250 000.00 euros TTC T3 à partir de 365 000.00 euros TTC Corinne BOUFFORT : 06.08.47.94.30 / CBN9818