Rennes rue de Nantes grand T3 de 70.4 m2 avec balcon sud, garage
Rennes 35000
0
Honoraires à la charge de l'acquéreur (Prix hors honoraires : 195000 euros).
AG IMMOBILIER COMMISSIONS REDUITES (ACHAT/VENTE) RENNES :
Malheureusement trop tard, cet appartement a été vendu par notre agence ! Si vous aussi vous avez un projet de vente n'hésitez plus, contactez nous ! Nos estimations sont gratuites et nos honoraires à la charge de l'acquéreur réduits (3.8%) !
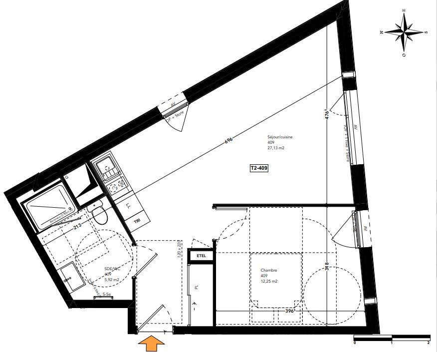
Notre agence est heureuse de vous présenter ce grand T3 de 70.4m² retransformable en T4 avec balcon plein sud, garage fermé et cave de 8m² en sous-sol ! Il comprend : Une belle entrée avec 2 placards, un salon/séjour sur parquet massif très lumineux de 25m² plein sud avec accès au balcon, une cuisine de 9m² avec placard, 2 chambres (12.25m² et 10.5m²) sur parquet massif, une salle d'eau avec douche récente, une loggia et un wc. L'appartement se situe au 2ème sur 3 sans ascenseur d'une petite résidence de 31 appartements avec parties communes rénovées en 2019, hall d'entrée sécurisé par interphone et chaudière collective changée en 2022 ! Une visite s'impose que vous cherchiez un 1er achat ou un investissement locatif ! Honoraires d'agence réduits prix HNI 202 410 (soit 195 000 net vendeur + 3.8% d'honoraires à la charge de l'acquéreur).
AG IMMOBILIER COMMISSIONS REDUITES Pacé 02.99.85.61.30 2 agences sur Rennes et Pacé à votre service Tous nos biens et + de photos sur www.agimmobilier.fr Les informations sur les risques auxquels ce bien est exposé sont disponibles sur le site Géorisques : www. georisques. gouv.fr
Nous recherchons en permanence pour notre large clientèle des biens à vendre sur l'ensemble des quartiers Rennais : Jeanne d'arc, Fougères, Beaulieu, les Gayeulles, Longchamps, Saint Laurent, centre-ville, centre historique, Saint-Hélier, Thabor-Sévigné, Colombier, Bourg l'Evêque, Saint-Martin, Chézy Dinan, Anatole France, Arsenal Redon, Motte Brûlon, Patton, Bellangerais, Lorient-Saint Brieuc, Villejean, Maurepas, Beauregard, Cleunay, La Courrouze. N'hésitez pas à nous contacter pour une ESTIMATION TOTALEMENT GRATUITE.
Honoraires inclus de 3.8% TTC à la charge de l'acquéreur. Prix hors honoraires 195 000 . Dans une copropriété de 97 lots. Aucune procédure n'est en cours. Classe énergie D, Classe climat D Montant estimé des dépenses annuelles d'énergie pour un usage standard : entre 1250.00 et 1750.00 sur les années 2021, 2022 et 2023 (abonnements compris). Les informations sur les risques auxquels ce bien est exposé sont disponibles sur le site Géorisques : georisques.gouv.fr.