Honoraires à la charge de l'acquéreur (Prix hors honoraires : 288535 euros).
Secteur Villeurbanne République T3 de 75 m2 avec Balcon, garage inclus et cave à seulement 2 minutes à pieds de l'arrêt de Métro A, arrêt République.
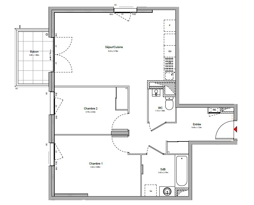
Rue Dedieu, au 3ème étage sur 5 dans une copropriété bien entretenue de 1992, nous vous proposons un appartement de type T3 de 75 m2.
L'entrée dessert une pièce de vie, une cuisine partiellement meublée indépendante (pouvant s'ouvrir sur le salon), l'ensemble donne sur un balcon à vivre exposé sud. L'espace nuit offre 2 chambres (côté nord) donnant sur jardin de la copropriété, une salle de bain, un Wc indépendant.
Côté technique : Chauffage individuel au gaz Double vitrage bois Volets roulants manuels
Prévoir travaux de rafraichissement
Une cave et un garage fermé en sous sol sont inclus au prix.
Honoraires à la charge de l'acquéreur. Taxe Foncière : 1427  Charges mensuelles de copropriété : 150 comprenant l'eau froide, l'entretien de la chaudière, charges courantes de copropriété...
Vous souhaitez visiter ce bien ou vous avez des questions ?
Contactez Patricia BARREL au 06 16 70 02 51 ou par mail p.barrel@pietrapolis.fr. (agent commercial RSAC 519 319 305).
Honoraires inclus de 3.63% TTC à la charge de l'acquéreur. Prix hors honoraires 288 535 . Dans une copropriété de 102 lots. Aucune procédure n'est en cours. Classe énergie C, Classe climat C Montant estimé des dépenses annuelles d'énergie pour un usage standard : entre 1090.00  et 1510.00  sur les années 2021, 2022 et 2023 (abonnements compris). Les informations sur les risques auxquels ce bien est exposé sont disponibles sur le site Géorisques : georisques.gouv.fr.