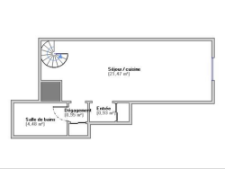
GRAND STUDIO AVEC MEZZANINE: 36.02m2 au sol (28,71m2 loi carrez) - AU HALAGE/BORDS DE MARNE. Dans résidence de standing avec parc et tennis. Cuisine équipée ouverte sur séjour, accès mezzanine (couchage), salle de bains avec wc, rangements. Stationnements extérieurs libres. A 5 minutes à pied des Iles Ste Catherine et Brise-Pain. RER A Saint-Maur/Creteil à 10mn à pied. Lignes de bus (notamment les bus 104, 107, 217) qui permettent de rejoindre les gares RER (Parc de Saint-Maur ou Maisons-Alfort/Alfortville). La Résidence La Palombière à Créteil offre un cadre de vie calme et verdoyant, des services et commodités à portée de main, et une excellente desserte en transports en commun, ce qui en fait un lieu de résidence attractif. Contactez-nous au 01 86 22 37 59
28.71 m²
5 538 €
21 m²
1
1
1
1
4 sur 4
172 € / mois
1975
Sud
Oui
Oui
Oui
Oui (248 lots)
Consommations énergétiques
Logement économe
325
Logement énergivore (kWhEP/m2/an)
Émissions de gaz à effet de serre
Faible émission de GES
70
Forte émission de GES(kgeqCO2/m2/an)
Contact VAJOU
Contacter gratuitement à l'aide du formulaire ci-dessous.