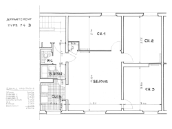
CRÉTEIL ÉGLISE - 4P EN BON ÉTAT, DANS RÉSIDENCE FERMÉE ET ARBORÉE. Au 4ème et dernier étage: Entrée, séjour et cuisine aménagée (hotte et lave-vaisselle), 3 chambres, salle d'eau avec wc. Double vitrage. Cave. Stationnement libre dans résidence réservé aux copropriétaires. A 2 pas de la rue piétonne. Sectorisation École Victor Hugo. Proche TVM et Métro Créteil Université à 8 minutes à pied. Une localisation privilégiée dans le centre ancien. La résidence est située en plein coeur du Centre Ancien de Créteil, un quartier qui a bénéficié de projets de rénovation majeurs visant à améliorer la qualité de vie des habitants.
Commerces et services à proximité : Vous êtes à deux pas de tous les services essentiels. Le quartier compte de nombreux commerces de proximité, ce qui rend le quotidien très pratique.
Accessibilité et transports : Bien desservi par les transports en commun. Il y a des bus qui permettent de se déplacer facilement dans la ville et de rejoindre la station de métro Créteil - Préfecture (Ligne 8). L'accès aux grands axes routiers est également un atout.
Qualité de l'environnement : Le quartier a été repensé pour donner plus de place aux piétons, avec un mail piétonnier et des espaces verts. Cela en fait un lieu de vie agréable, où il est plaisant de se promener ou de se retrouver.
En résumé, ce 4 pièces combine un espace optimisé avec les avantages d'une vie de quartier pratique et dynamique, au coeur de la ville.
62.72 m²
3 795 €
19 m²
4
3
1
1
4 sur 4
270 € / mois
1958
Oui
Oui
Oui
Oui (514 lots)
Consommations énergétiques
Logement économe
307
Logement énergivore (kWhEP/m2/an)
Émissions de gaz à effet de serre
Faible émission de GES
67
Forte émission de GES(kgeqCO2/m2/an)
Contact VAJOU
Contacter gratuitement à l'aide du formulaire ci-dessous.