IMMÖÖ vous propose à vente en état futur d'achèvement ces appartements situés dans la résidence Beau Manoir.
Les biens encore disponibles vont du 2ème étage doté d'un appartement T4, au 4ème étage avec deux appartements T3 et un appartement T4, au 5ème étage avec le dernier T5.
ils sont munis :
- De cuisines équipées : plan de travail, évier avec robinetterie mitigueur, plaques à induction, hotte, meubles hauts et sous évier et meubles bas suivant plan. - De salle de bain : vasque en porcelaine sur meuble, plan de toilette en porcelaine, miroir, baignoire avec tablier faïencé ou bac à douche, robinetterie thermostatique. - Double vitrage isolant sur toutes les menuiseries extérieurs en PVC avec volets roulants motorisés. - Carrelage grès émaillé dans les pièces à vivre et parquet dans les chambres. - Placards à portes coulissantes équipés d'étagères ou de tringles. - Production de chauffage et d'eau chaude par le réseau de chaleur urbaine.
- Vidéophone et système par badge, ascenceur. - Hall avec porte d'entrée vitrée en aluminium laqué, fermeture par ventouse, sol en carrelage grè cérame, miroir, revêtement mural selon projet décoratif de l'architecte. - Porte palière à âme pleine, 40mm d'épaisseur équipée d'une serrure à canon de sûreté, fermeture 3 points, joints isophonique et seuil à la suisse. - Accès à la résidence par portail véhicule avec ouverture automatique télécommandée. - Porte de hall à l'entrée de la résidence commandé par interphonie
Un parking en sous-sol permet le stationnement des résidents.
La résidence se situe à proximité du parc Grammont doté d'une superficie de 29 000 m² adapté pour le sport, la détente, la promenade et disposant d'un jardin partagé. Face au Pôle culturel Grammont qui comprend une partie des archives départementales et la bibliothèque Simone-de-Beauvoir. D'une architecture soignée, la résidence Beau Manoir est dotée d'une façade de style contemporain avec une inspiration néo-normande, lui conférant un charme tout particulier. Une végétation discrète agrémente le toit terrasse et les balcons privatifs. Les matériaux de façade sont en enduit de couleur gris clair décorés de colombages de ton brun.
Contactez-nous pour plus de renseignements.
Honoraires à la charge du vendeur. Dans une copropriété de 40 lots. Aucune procédure n'est en cours. Non soumis au DPE. Les informations sur les risques auxquels ce bien est exposé sont disponibles sur le site Géorisques : georisques.gouv.fr.
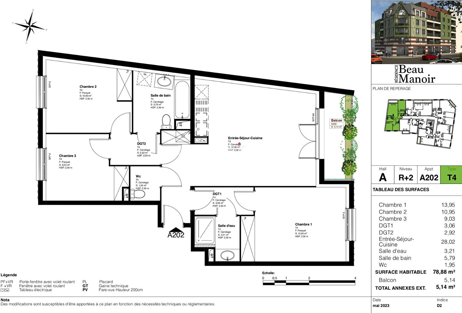
82.93 m²
3 690 €
4
3
1
1 (séparé)
4 sur 20
2024
5
Oui
1
Oui (40 lots)
Contact Agence IMMÖÖ
Contacter gratuitement à l'aide du formulaire ci-dessous.