ANNÉE-HOINVILLE IMMOBILIER vous propose un Appartement de 3 pièces avec balcon Résidence de grand standing au coeur de Deauville
Découvrez cette résidence neuve d'exception, idéalement située au centre de Deauville, à deux pas de la plage, des commerces et du Casino. Ce programme exclusif allie architecture élégante, prestations haut de gamme et emplacement rare.
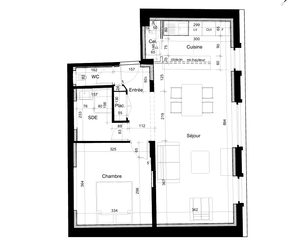
Cet appartement de 57 m² séduit par ses volumes et son confort moderne. Il comprend deux chambres, une salle d'eau, un WC indépendant, ainsi qu'un séjour lumineux avec cuisine ouverte, prolongé par un balcon privatif.
Prestations et confort haut de gamme : Résidence intimiste de seulement 12 appartements Appartements traversants pour une luminosité optimale Aménagement intérieur 100 % personnalisable Baies coulissantes, volets roulants électriques et système domotique Matériaux nobles : briques, faïences, toiture en ardoise Jardins privatifs pour les appartements en rez-de-chaussée Appartements de grande superficie offrant confort et élégance Places de parking boxables en sous-sol et ascenseur à voitures Résidence sécurisée : interphone vidéo, éclairage par détecteur de mouvements Local à vélos accessible à tous les résidents Livraison prévue : 3? trimestre 2026.
Idéal pour une résidence principale ou secondaire, cet appartement incarne un art de vivre raffiné au coeur de Deauville. Il constitue également une opportunité d'investissement rare, dans un cadre alliant prestige, confort et sérénité.
Vivre à Deauville, c'est profiter d'un quotidien unique: promenades sur les Planches, courses à l'hippodrome, restaurants renommés et atmosphère élégante tout au long de l'année.
Les informations sur les risques auxquels ce bien est exposé sont disponibles sur le site Géorisques : www.georisques.gouv.fr.
Suite à l'article l. 561-5 du code monétaire et financier, la copie de la pièce d'identité de tous les visiteurs sera demandée avant la visite. Nous vous remercions de faciliter cette démarche à votre conseiller.
Honoraires à la charge du vendeur. Dans une copropriété de 30 lots. Aucune procédure n'est en cours. DPE en cours. Les informations sur les risques auxquels ce bien est exposé sont disponibles sur le site Géorisques : georisques.gouv.fr.
57.9 m²
10 518 €
4 m²
19 m²
3
2
1
1
3 sur 4
2025
Est
Nord
1 (4 m²)
Oui
1
Oui (30 lots)
Contact ANNEE-HOINVILLE IMMOBILIER DEAUVILLE
Contacter gratuitement à l'aide du formulaire ci-dessous.