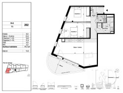
Magnifique résidence avec piscine en front de mer au Grau du Roi ! Je vous propose un T3 de 77m² avec vue latérale sur la mer et couchers de soleil garantis ! Le séjour-cuisine de 33m² est prolongé d'une très belle terrasse de 14m² exposée sud-ouest. L'espace nuit est composé de deux chambres, dont une de 15m² et d'une salle d'eau très confortable. La re?sidence est entie?rement close et l'ensemble de ses acce?s sont se?curise?s. Les acce?s rue et plage, le hall, le parking et l'acce?s en roof top sont sous vide?osurveillance. Le RDC est dédié aux stationnements, vous disposez de 2 stationnements privatifs et sécurisé. Une terrasse commune en roof top avec piscine est accessible par ascenseur. Le jardin, espace libre en pleine terre plante? d'arbres et de bosquets peu consommateurs d'eau, est agre?mente? d'un cheminement pie?ton donnant acce?s a? la plage. Système chauffage gainable réversible, carrelage 90x90cm, menuiseries aluminium, occultation centralise?e pour tous les volets roulants. Une adresse unique, à quelques minutes des commerces, de l'Etang du Ponant, du club de tennis de la Grande Motte et du Bois du Boucanet. Me contacter. Carole Ducoin-EI, votre consultante partenaire RSAC de Montpellier N° 832 505 465.
Honoraires à la charge du vendeur. Dans une copropriété de 23 lots. Quote-part moyenne du budget prévisionnel 1 350 /an. Aucune procédure n'est en cours. DPE vierge. Les informations sur les risques auxquels ce bien est exposé sont disponibles sur le site Géorisques : georisques.gouv.fr.