Honoraires à la charge de l'acquéreur (Prix hors honoraires : 460000 euros).
* FRAIS DE NOTAIRE OFFERTS *
L'ATELIER DE JEANNE - Quartier Jeanne d'Arc à RENNES (Rue Jeanne Jugan) - LIVRAISON 4ème TRIMESTRE 2026.
PTZ / RESIDENCE PRINCIPALE / LMNP-LMP.
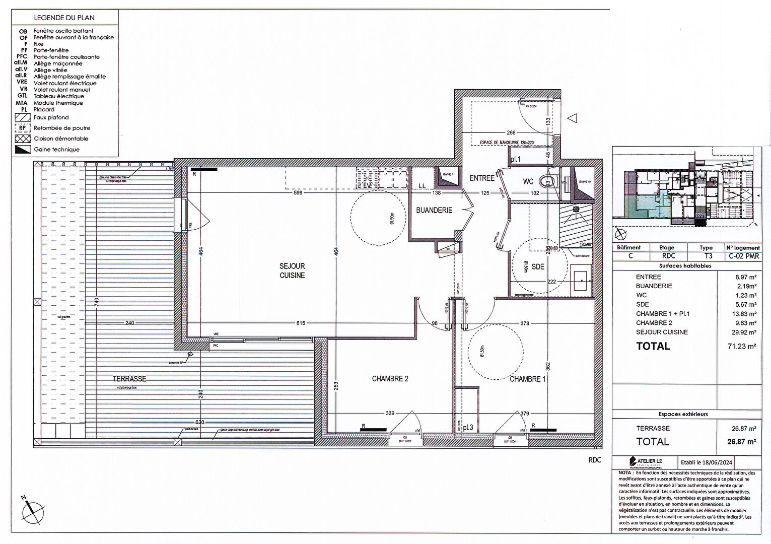
Résidence neuve avec ascenseur de 19 logementsuniquement en accession libre
Idéalement situé au coeur du quartier Jeanne d'Arc à Rennes, dans une rue à sens unique, à moins de 5 minutes à pieds des commerces et des écoles, le programme L'Atelier de Jeanne se compose de seulement 19 logements du T1 Bis au T5 uniquement en accession libre, résidence avec Ascenseurs, garages/parkings et caves en sous-sol sécurisé.
Pour un confort thermique optimal, L'Atelier de Jeanne est labellisé E3C1 (très basse consommation énergétique).
Conçu pour proposer un cadre de vie intimiste, L'Atelier de Jeanne, résidence de deux étages, évoque l'esprit 'maison'. Cette faible densité résidentielle favorise un environnement calme et sécurisé pour un cadre de vie paisible. Chaque appartement a été pensé pour garantir un confort optimal, avec des prestations de standing. Un ascenseur dessert tous les niveaux compris le sous-sol.
L'Atelier de Jeanne s'intègre harmonieusement dans l'environnement existant. Situé sur le site d'une ancienne biscuiterie, le traitement paysager occupe une place importante : il met en valeur le patrimoine arboré déjà présent, renforcé par de larges terrasses et jardins privatifs paysagers exposés plein sud.
La résidence est parfaitement désservie et reliée au centre-ville de Rennes et de Cesson-Sévigné grâce au réseau de transport en commun : métro et lignes de bus. Elle bénéficie également d'un emplacement stratégique avec les parcs du Thabor et Oberthur et les plages de Baud...
Du T1 Bis à partir de 199 000 au T5
* Offre commerciale jusqu'au 27 juin 2026
Dans une copropriété de 49 lots. Aucune procédure n'est en cours. DPE en cours. Les informations sur les risques auxquels ce bien est exposé sont disponibles sur le site Géorisques : georisques.gouv.fr.