Honoraires à la charge de l'acquéreur (Prix hors honoraires : 509000 euros).
PROFITEZ DE L'OFFRE COMMERCIALE :
Remises de 5 000 sur les T2, Remises de 7 000 sur les T3, Remises de 10 000 sur les T4 et T5.
Jusqu'au 28 février 2026
Pour tout contrat de réservation signé (dans la limite des stocks disponibles voir les conditions auprès du service commercial)
*L'ATELIER DE JEANNE - Quartier Jeanne d'Arc à RENNES (Rue Jeanne Jugan) - LIVRAISON ÉTÉ 2027
Résidence neuve avec ascenseur de 19 logements uniquement en accession libre.
PTZ / RESIDENCE PRINCIPALE / LMNP-LMP.
Idéalement situé au coeur du quartier Jeanne d'Arc à Rennes, dans une rue à sens unique, à moins de 5 minutes à pieds des commerces et des écoles, le programme L'Atelier de Jeanne se compose de seulement 19 logements du T1 Bis au T5 uniquement en accession libre, résidence avec Ascenseurs, garages/parkings et caves en sous-sol sécurisé.
Pour un confort thermique optimal, L'Atelier de Jeanne est labellisé E3C1 (très basse consommation énergétique).
Conçu pour proposer un cadre de vie intimiste, L'Atelier de Jeanne, résidence de deux étages, évoque l'esprit 'maison'. Cette faible densité résidentielle favorise un environnement calme et sécurisé pour un cadre de vie paisible. Chaque appartement a été pensé pour garantir un confort optimal, avec des prestations de standing. Un ascenseur dessert tous les niveaux compris le sous-sol.
L'Atelier de Jeanne s'intègre harmonieusement dans l'environnement existant. Situé sur le site d'une ancienne biscuiterie, le traitement paysager occupe une place importante : il met en valeur le patrimoine arboré déjà présent, renforcé par de larges terrasses et jardins privatifs paysagers exposés plein sud.
La résidence est parfaitement désservie et reliée au centre-ville de Rennes et de Cesson-Sévigné grâce au réseau de transport en commun : métro et lignes de bus. Elle bénéficie également d'un emplacement stratégique avec les parcs du Thabor et Oberthur et les plages de Baud...
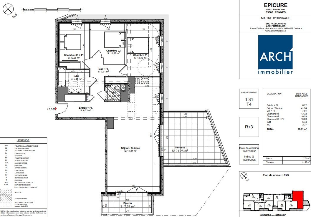
Du T2 à partir de 280 000 au T5
Dans une copropriété de 49 lots. Aucune procédure n'est en cours. Non soumis au DPE. Les informations sur les risques auxquels ce bien est exposé sont disponibles sur le site Géorisques : georisques.gouv.fr.