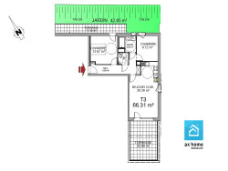
L'appartement se compose de trois pièces principales, dont un séjour / cuisine ouverte lumineux de 26 m², idéal pour recevoir vos proches. Les deux chambres, spacieuses et baignées de lumière naturelle, offrent un cadre reposant pour des nuits paisibles. La salle de bains, moderne et fonctionnelle, les WC séparés complètent cet espace de vie harmonieux.
Caractéristiques : - Logement 3 pièces - Livraison prévue : 4e trimestre 2026 - Isolation RE2020 : performances énergétiques optimisées - Chauffage : individuel au sol, au gaz - Confort : volets motorisés, ascenseur accessible PMR - Prestations de qualité : choix de carrelages, parquets, placards aménagés, WC suspendu, cellier - Personnalisation : possibilité de personnaliser les finitions intérieures - Espaces extérieurs pour chaque logement
Points forts : - Ascenseur - Terrasse et jardin privatif - Prestations grand confort - Possibilité de visiter notre logement témoin sur simple demande
Vous souhaitez en savoir plus ou programmer une visite? ? Contactez nous AX'HOME IMMOBILIER ? 03 88 61 37 09 - ?? axhome@axhome.net | www.axhome.immo
Deux agences pour plus de proximité : - 104 A Route de Saverne - Oberhausbergen - 33 Allée de l'Economie - Wiwersheim
Les informations sur les risques auxquels ce bien est exposé sont disponibles sur le site Géorisques : www.georisques.gouv.fr. Le DPE sera fourni à réception du logement.
Honoraires à la charge du vendeur. Dans une copropriété de 21 lots. Aucune procédure n'est en cours. Non soumis au DPE. Les informations sur les risques auxquels ce bien est exposé sont disponibles sur le site Géorisques : georisques.gouv.fr.
Carte pro. CPI 67012016000014808 AC ADC 6701 2020000243374. Ax'Home Immobilier - 2 agences de proximité pour mieux vous accompagner.
Oberhausbergen - 104A Route de Saverne (en face de Prowin) Wiwersheim - 33 Allée de l'Economie (Galerie 'Au Jardin des Sens' au dessus d'Esprit Pain)
66.31 m²
4 208 €
26 m²
3
2
1
1 (séparé)
2026
Sud
Ouest
Oui
1
1
1
Oui (21 lots)
Contact AX'HOME IMMOBILIER
Contacter gratuitement à l'aide du formulaire ci-dessous.