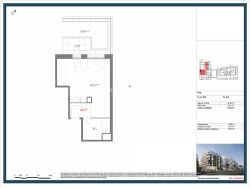
RÉSIDENCE SENIOR - APPARTEMENT T1 BIS - ROUEN RIVE DROITE CENTRE - 36.64m²
Rouen 76000
0
Honoraires à la charge du vendeur.
Vos agences ESPACE IMMO vous proposent cette magnifique résidence située en plein coeur de Rouen, proche de toutes les commodités (transports en commun, commerces ...) entre les DOCKS 76 et la Préfecture. Nous vous proposons dans cette résidence de 7 étages, le dernier appartement T1 Bis comprenant : un spacieux séjour-cuisine et une salle d'eau. Vous bénéficierez d'une terrasse privative pour profiter des beaux jours et également de deux places de parking ! Livraison prévue au premier semestre 2027. Cette résidence bénéficie d'une architecture de qualité avec des logements adaptés et ergonomiques. Vous y retrouverez également des lieux de vie atypiques, des espaces communs dédiés aux habitants pour se relaxer, faire du sport et profiter. Salle de sport, salon bien-être et esthétique, atelier cuisine, salon TV, atelier bricolage, buanderie, bibliothèque, terrasse/rooftop, jardin et potager ... Tout a été pensé pour le confort des habitants ! En résumé, un appartement moderne, qui respectera la réglementation thermique RT 2012, idéalement situé à deux pas des transports en commun et des commerces. N'hésitez plus, contacter votre agence ESPACE IMMO pour vous présenter ce beau projet au 02.35.76.96.23 ! Les informations sur les risques auxquels ce bien est exposé sont disponibles sur le site Géorisques : www.georisques.gouv.fr. Copropriété de 92 lots - dont 61 lots habitation. (Pas de procédure en cours). Charges annuelles : 1000 euros.