Baobab vous propose en exclusivité cet appartement T3 de 74m² avec balcon et cave situé à La Motte-Servolex (Résidence Saint-Anne) au tarif de 199 900 (honoraires Baobab de 6600 inclus).
Au 4ème étage sans ascenseur et sans vis-à-vis d'une copropriété recherchée située au centre-ville. Tous les commerces/ écoles et commodités sont à proximités.
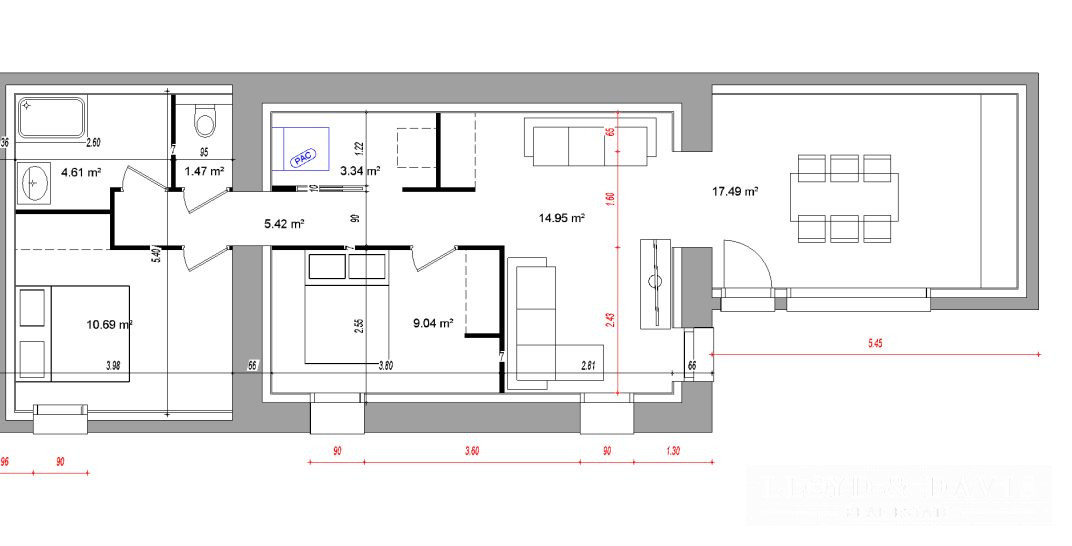
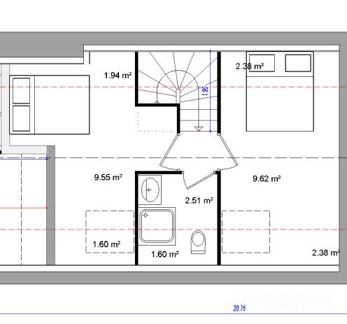
Descriptif : Grand hall d'entrée desservant un double salon/séjour de 25m² sur balcon sud avec vue panoramique, une cuisine équipée et aménagée de 9m² avec cellier de 2m². Un couloir de distribution équipés de grands placards aménagés dessert le coin nuit composé de deux chambres (11,38m2 et 9,31m2), une salle de bains avec douche et un WC indépendant.
Charges de copropriété : 227/mois (Assurance de copropriété, Chauffage, eau chaude, électricité communs, entretien des parties communes, espaces verts...)
L'avis Baobab : Appartement idéalement situé au centre de La Motte-Servolex.
Baobab Immobilier Vous bougez, nous aussi!!!
Honoraires à la charge du vendeur. Dans une copropriété de 24 lots. Quote-part moyenne du budget prévisionnel 2 732 /an. Aucune procédure n'est en cours. Classe énergie D, Classe climat C Montant moyen estimé des dépenses annuelles d'énergie pour un usage standard, établi à partir des prix de l'énergie de l'année 2021 : entre 1010.00 et 1410.00 . Les informations sur les risques auxquels ce bien est exposé sont disponibles sur le site Géorisques : georisques.gouv.fr.