Honoraires à la charge de l'acquéreur (Prix hors honoraires : 471000 euros).
Situé au coeur d'un environnement résidentiel prisé, à proximité immédiate de l'École Nationale Vétérinaire et des bords de Marne, cet appartement 3 pièces séduit par son calme, sa luminosité et son style architectural raffiné inspiré des demeures traditionnelles de Maisons-Alfort.
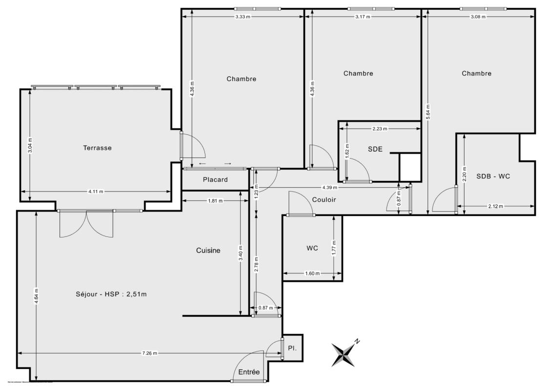
La pièce de vie ouverte de 31m², agrémentée de larges ouvertures, offre un cadre chaleureux et fonctionnel, tandis que les deux chambres constituent un espace nuit confortable et bien séparé.
Les points forts : Volumes harmonieux et belle luminosité Prestations de qualité : parquet, carrelage raffiné, volets roulants, double vitrage, salle de bain aménagée Résidence élégante à l'architecture inspirée des maisons traditionnelles locales Coeur d'îlot végétalisé, garantissant calme et intimité Conforme à la réglementation environnementale RE2020, assurant performance énergétique et confort thermique Proximité idéale : métro ligne 8 à 4mn à pied, RER D, écoles, commerces, pistes cyclables et bords de Marne
Photos destinées à exprimer une intention architecturale susceptibles d'adaptations. Réservation sur demande joignable 7J/7| +33 (0)6 13 87 47 85 | Monsieur SOUANE
Non soumis au DPE. Les informations sur les risques auxquels ce bien est exposé sont disponibles sur le site Géorisques : georisques.gouv.fr.