Rez-de-jardin au calme dans une résidence de standing
Lyon 69005
0
Honoraires à la charge du vendeur.
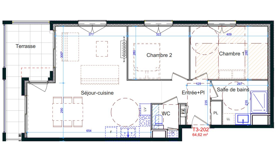
Situé dans le quartier prisé de La Plaine, dans le 5e arrondissement de Lyon, ce rez-de-jardin de 76 m² offre un cadre de vie contemporain et apaisant au coeur d'une résidence de standing livrée en 2020 par Bouygues Immobilier. Baigné de lumière grâce à son exposition plein sud, ce bien rare dispose d'un agréable extérieur composé d'une terrasse sur plots de 20 m² et d'un jardin privatif de 45 m², véritable havre de verdure en milieu urbain. L'entrée, équipée de rangements intégrés, mène à une pièce de vie chaleureuse et fonctionnelle. Le parquet en chêne massif y côtoie une cuisine ouverte au design épuré, entièrement aménagée, qui prolonge naturellement l'espace salon/salle à manger. Les larges baies vitrées offrent une belle connexion avec l'extérieur tout en laissant entrer une lumière constante. Les brise-soleil orientables en aluminium participent à la régulation thermique et lumineuse, ajoutant un confort appréciable au quotidien. L'espace nuit se compose de trois chambres, dont une suite parentale avec sa propre salle d'eau et son grand placard. Une salle de bains séparée accueille également une buanderie discrète avec emplacement pour machine à laver. Un WC indépendant complète ce niveau, accompagné d'un espace technique intégré pour la chaudière et des rangements pratiques. Côté extérieur, la terrasse prolonge naturellement le séjour vers le jardin arboré, intimiste et parfaitement entretenu. Cet espace accueille une zone repas et un coin salon d'extérieur, idéal pour profiter des beaux jours. La résidence, calme et sécurisée, se situe à proximité immédiate des écoles, commerces et transports en commun, offrant un équilibre parfait entre vie urbaine et tranquillité résidentielle. Une cave complète ce bien, et un garage fermé est proposé en sus. Bien soumis au statut de la copropriété : 20 lots Charges annuelles : 1800 euros CLASSE ENERGIE : C / CLASSE CLIMAT : C Montant moyen estimé des dépenses annuelles d'énergie pour un usage standard, établi à partir des prix de l'énergie de l'année 2025 : entre 790 euros et 1120 euros Contact : Aurélien - 06 32 21 70 25 Aurelien Badin (EI) Agent Commercial - Numéro RSAC : 894 025 436 - VIENNE.