Goodshowcase

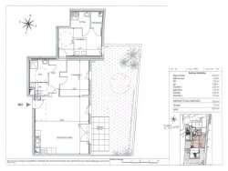
Vente appartement 3 pièces
257 000 €

Contact 5 PIECES ET PLUS

Contacter gratuitement à l'aide du formulaire ci-dessous.


Afficher le téléphone


Annonces similaires

Vente appartement

La Seyne-sur-Mer 83500 - 0

209 000 €

CHEMIN DE BELLEVUE QUARTIER PONT DE FABRE APPARTEMENT VENDU LOUE 800? HORS CHARGES AU 3EME ET...

Voir l'annonce

Vente appartement

La Seyne-sur-Mer 83500 - 0

255 000 €

...L'appartement se compose d'une entrée desservant : - Une cuisine ouverte, entièrement équipée et...

Voir l'annonce

Vente appartement

La Seyne-sur-Mer 83500 - 0

224 000 €

...Vous profiterez d'un hall d'entrée avec rangements , de 3 chambres , d'un lumineux salon-séjour...

Voir l'annonce

Vente appartement

La Seyne-sur-Mer 83500 - 0

254 000 €

...Cadre de vie ensoleillé du matin au soir, beaux volumes et agencement fluide : entrée, chambre...

Voir l'annonce

Vente appartement

La Seyne-sur-Mer 83500 - 0

237 500 €

...Séjour lumineux exposé Ouest avec cuisine ouverte aménagée et équipée, donnant sur une belle...

Voir l'annonce