RILLIEUX PISCINE ORIGAMI ALLEE DES ECUYERS LOCATION APPARTEM
Rillieux-la-Pape 69140
0
Les charges de location sont prévisionnelles mensuelles avec régularisation annuelle.
La part des honoraires pour la réalisation de létat des lieux de ce bien est de 204 euros.
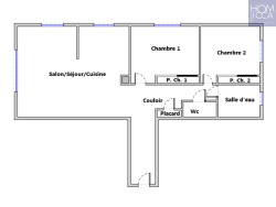
Rillieux, dans le quartier de la piscine Origami, dans un bel immeuble de 2003, entièrement en intérieur de copropriété, je vous propose à la location en meublé ce bel appartement de 68m2 en rez-de-jardin. LOUE MEUBLE Il comprend une belle entrée carrelée, une grande pièce de vie de 33m2 avec une cuisine entièrement équipée et meublée ouverte sur le séjour donnat accès au magnifique jardin privatif de 150m2, un espace nuit comprend un dégagement avec deux chambres avac chacune un placard, une salle d'eau avec douche éclairée par une fenêtre, et un wc séparé. Le jardin est à l'abri des regards, est calme et lumineux. En annexes, il y a une cave privative, et des parkings extérieurs. Il est à proximité des commerces, des bus. Environnement très calme. Le loyer est de 1100EUR charges comprises soit 1000EUR + 100EUR de charges dont la taxe d'ordures ménagères. Honoraires locataires : 884EUR euros Dont : - constitution dossier, rédaction de bail : 680 euros - Etablissement état des lieux : 204 euros. Les honoraires de location appliqués sont conformes au décret 2014-890 du 1er Août 2014. Pour visiter et vous accompagner dans votre projet, contactez Christophe AVON, directeur d'agence au 06.82.16.24.75. Agence Homicca www.homicca.fr Les informations sur les risques auxquels est exposé ce bien sont disponibles sur le site Géorisques : www.georisques.gouv.fr
68 m²
33 m²
3
2
1
1
884 %
90 € / mois
2003
Sud
Ouest
Oui
1
1
Oui
1
Oui
Oui (115 lots)
Consommations énergétiques
Logement économe
161
Logement énergivore (kWhEP/m2/an)
Émissions de gaz à effet de serre
Faible émission de GES
31
Forte émission de GES(kgeqCO2/m2/an)
Contact AVON Christophe
Contacter gratuitement à l'aide du formulaire ci-dessous.