Rognes ? Appartement T3 lot 102 avec loggias et box fermé
Rognes 13840
0
Bienvenue chez une agence familiale qui s'engage à un service immobilier d'exception. Faites confiance à notre expertise pour transformer vos projets immobiliers en réussites remarquables.
Dans le charmant village de Rognes, au c?ur de la nouvelle place du village, découvrez cet appartement de type T3, exposé Sud, situé au 1er étage d'une résidence de standing avec stationnement.
Caractéristiques de l'appartement :
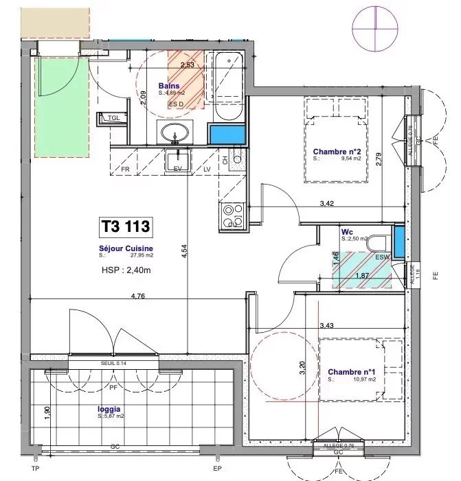
Surface : 62,26 m²
Deux loggias : 7,83 m² et 7,35 m²
Box fermé au sous-sol avec ascenseur
Disposition de l'appartement :
Séjour lumineux avec cuisine ouverte de 32,13 m², donnant sur la première loggia de 7,83 m²
Première chambre de 12,37 m², donnant sur la seconde loggia de 7,35 m²
Seconde chambre de 10,90 m²
Salle de bains de 4,78 m²
WC séparés de 2,08 m²
Atouts du bien :
Idéal pour une résidence principale ou un investissement locatif
Eligible au nouveau PTZ à compter du 1er avril 2025
Prix de vente : 327 400 € TTC (Honoraires à la charge du vendeur)
D'autres lots sont disponibles : T3 et T2 de 35 m² à 65 m². Envie d'en savoir plus ?
Contactez-nous !
Les informations sur les risques auxquels ce bien est exposé sont disponibles sur le site Géorisques : http://www.georisques.gouv.fr
Bien présenté par Agences de France par délégation.
Agences de France ? SIREN : 899413603 ? Titulaire de la carte T : 29012021000000009 non habilité à percevoir des fonds
62 m²
5 281 €
3
2
1
1
1 sur 2
Sud
Oui
Contact Laura PEFFERT
Contacter gratuitement à l'aide du formulaire ci-dessous.