Rognes ? T3 lot 110 neuf avec loggia, exposition Sud et box fermé en sous-sol
Rognes 13840
0
Bienvenue chez, l'agence familiale qui s'engage à un service immobilier d'exception. Faites confiance à notre expertise pour transformer vos projets immobiliers en réussites remarquables.
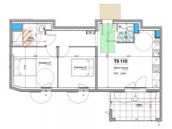
Dans le charmant village de Rognes, au c?ur de la nouvelle place de village, découvrez ce T3 lumineux de 55,61 m², situé au 1er étage d'une résidence neuve de standing avec ascenseur et box fermé en sous-sol.
L'appartement comprend une belle pièce de vie de 27,77 m² avec cuisine ouverte donnant sur une loggia de 8,37 m² exposée plein Sud, deux chambres de 11,65 m² et 9,88 m², une salle de bain de 2,78 m² et des WC séparés.
Les + du programme :
- Loggia bien orientée, à l'abri des regards
- Exposition Sud idéale
- Résidence neuve avec ascenseur et prestations de qualité
- Box fermé sécurisé en sous-sol
- Éligible au nouveau PTZ dès le 1er avril 2025
Prix de vente : 280.000 € TTC (Honoraires à la charge du vendeur)
D'autres lots sont disponibles, T2 et T3 de 35 à 65 m².
Envie d'en savoir plus ? Contactez-nous !
Ce bien a retenu votre intérêt ? Pour organiser la visite avec nous, rien de plus simple, prenez rendez-vous en ligne au moment qui vous convient le mieux.
Les informations sur les risques auxquels ce bien est exposé sont disponibles sur le site Géorisques : www.georisques.gouv.fr.
Ce bien n'est potentiellement pas concerné par un tel risque.
La présente annonce immobilière a été rédigée sous la responsabilité éditoriale de.
Bien présenté par Agences de France par délégation.
Agences de France ? SIREN : 899413603 ? Titulaire de la carte T : 29012021000000009 non habilité à percevoir des fonds
55 m²
5 091 €
3
2
1
1
1 sur 2
Sud
Oui
Contact Laura PEFFERT
Contacter gratuitement à l'aide du formulaire ci-dessous.