Rognes ? T3 lot 113 neuf avec loggia exposée Sud-Ouest et box fermé en sous-sol
Rognes 13840
0
Bienvenue chez, l'agence familiale qui s'engage à un service immobilier d'exception. Faites confiance à notre expertise pour transformer vos projets immobiliers en réussites remarquables.
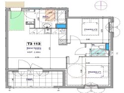
Dans le c?ur du village de Rognes, sur la nouvelle place, découvrez ce T3 de 55,85 m², situé au 1er étage d'une résidence de standing avec ascenseur, disposant d'un box fermé en sous-sol.
L'appartement se compose d'une belle pièce de vie de 27,95 m² avec cuisine ouverte donnant sur une loggia de 5,87 m² exposée Sud-Ouest, deux chambres de 10,97 m² et 9,54 m², une salle de bain de 4,89 m² et des WC séparés de 2,50 m².
Les + du programme :
Résidence neuve avec ascenseur
Loggia bien orientée, Sud-Ouest
Box fermé sécurisé en sous-sol
Éligibilité au nouveau PTZ dès le 1er avril 2025
Prix de vente : 287 200 € TTC (Honoraires à la charge du vendeur)
T2 et T3 de 35 à 65 m² encore disponibles.
Contactez-nous pour en savoir plus !
Ce bien a retenu votre intérêt ? Pour organiser la visite avec nous, rien de plus simple, prenez rendez-vous en ligne au moment qui vous convient le mieux.
Les informations sur les risques auxquels ce bien est exposé sont disponibles sur le site Géorisques : www.georisques.gouv.fr.
Annonce rédigée sous la responsabilité éditoriale de, agent commercial (EI), immatriculé au RSAC de Salon-de-Provence sous le n° 904 617 404, sans détention de fonds, agissant pour le compte de la SARL, au capital de 5 000 €, immatriculée sous le, titulaire de la carte professionnelle n° CPI 7501 2018 000 025 842 délivrée par la CCI de Paris Île-de-France, dont le représentant légal est, ayant son siège social au 12 rue des Halles, 75001 Paris.
Bien présenté par Agences de France par délégation.
Agences de France ? SIREN : 899413603 ? Titulaire de la carte T : 29012021000000009 non habilité à percevoir des fonds
55 m²
5 222 €
3
2
1
1
1
Sud
Ouest
Oui
Contact Laura PEFFERT
Contacter gratuitement à l'aide du formulaire ci-dessous.