ROMANS (PROCHE CENTRE) - Appartement T4 avec balcon
Romans-sur-Isère 26100
0
Honoraires à la charge du vendeur.
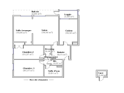
Dans résidence, appartement type 4 de 75 m2 avec accès de plain-pied et situé au 1er étage, côté salon-séjour-cuisine. Les pièces de vie donnent accès à un balcon orienté au sud, cuisine équipée, salon-séjour de 27 m2 avec climatisation, 2 chambres de plus de 11 m2 (possibilité 3 chambres), salle d'eau et WC séparé. Cave, faibles charges (65 EUR/mois) et travaux d'isolation par l'exterieur prévus à la charge du vendeur (17 000 EUR). Résidence très calme proche de toutes les commodités. - Annonce rédigée et publiée par un Agent Mandataire -
75 m²
1 533 €
9 m²
27 m²
4
3
1
1
65 € / mois
1970
Sud
1 (9 m²)
Oui
Oui
Oui
Oui
Oui
Oui (74 lots)
Consommations énergétiques
Logement économe
139
Logement énergivore (kWhEP/m2/an)
Émissions de gaz à effet de serre
Faible émission de GES
27
Forte émission de GES(kgeqCO2/m2/an)
Contact Julien BATT
Contacter gratuitement à l'aide du formulaire ci-dessous.