ROUSSILLON /GARGAS terrain de 7300 m2 avec permis de 450 m2
Gargas 84400
0
Honoraires à la charge du vendeur.
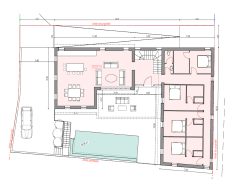
Gargas proche Roussillon en colline avec vue et position dominante, superbe terrain de 7300 m2 vendu avec un permis de construire accordé et purgé. Le projet permet la construction d'une maison de 225 m2 en rez de jardin et d'un sous sol de 240 m2 l'ensemble avec piscine. Vue sur le village de Roussillon possible depuis le terrain. Opportunité rare à saisir ! Dossier sur demande auprès de l'agence Pierres de Provence immobilier au 07 86 41 85 79
7300 m²
30 €
7300 m²
Sud
Ouest
Contact PIERRES DE PROVENCE IMMOBILIER
Contacter gratuitement à l'aide du formulaire ci-dessous.