Dernière opportunité Il ne reste plus qu'un seul appartement 4 pièces disponible !
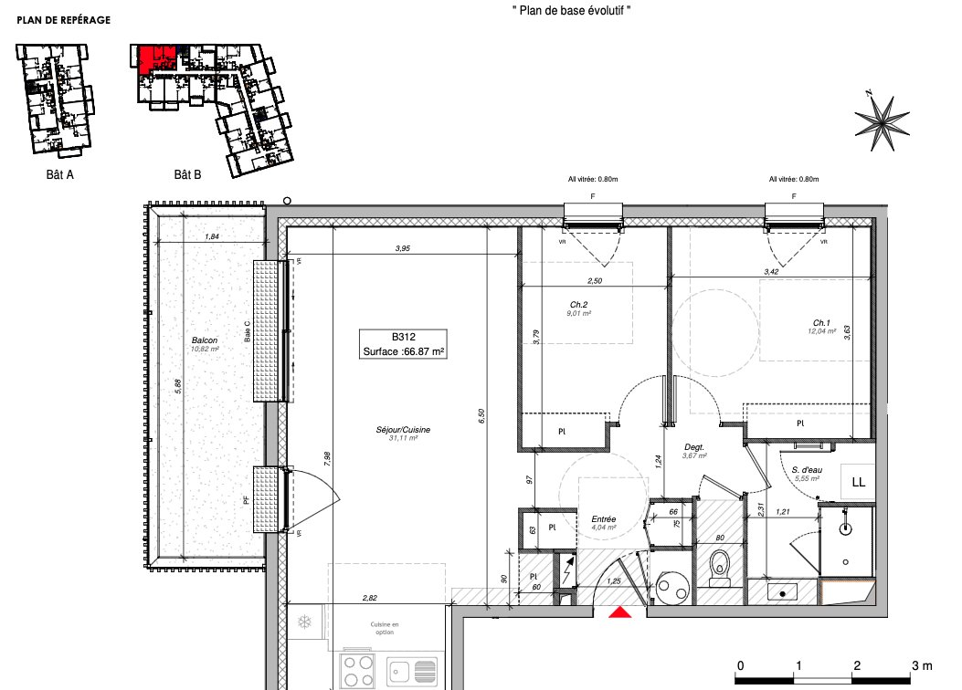
Étage : 1er Surface : 80,22 m² Orientation : Ouest Parking : 2 places privatives Composition : entrée, salon-séjour-cuisine de 27,46 m², dégagement desservant 3 chambres, 2 salles d'eau, WC séparé, et terrasse de 11,70 m²
? Prix : 249 900
Venez vite découvrir cette dernière opportunité et concrétiser votre projet immobilier dans un cadre moderne et confortable.
Une localisation idéale : Bien intégrée à l'agglomération angevine, Saint-Barthélemy-d'Anjou combine calme et qualité de vie avec un dynamisme économique important grâce au plus grand parc d'activités du département. L'environnement est paisible et paysager, composé de maisons et de petites résidences, avec de nombreux cheminements doux. Gare d'Angers à 15 minutes (Nantes : 42 min, Le Mans : 40 min, Paris : 1h30 en train) Centre-ville d'Angers à 10 minutes en voiture Ligne de bus n°2 vers le centre d'Angers au pied de la résidence Vie quotidienne facilitée : Commerces et services à proximité : boulangerie, restaurants, poste, tabac presse, supermarché et grande enseigne de bricolage à 10 min à pied.Scolarité complète : de la maternelle jusqu'à l'université à Angers.
Des prestations modernes et confortables : Parkings en sous-sol ou extérieurs inclus Belles expositions et vues dégagées Architecture moderne et pérenne Aménagements paysagers et arborés Matériaux de qualité et conception fonctionnelle Les avantages du neuf : Prêt à Taux Zéro possible pour les primo-accédants Avantages fiscaux pour optimiser votre investissement Frais de notaire réduits, paiements échelonnés Aucun travaux à prévoir Conformes aux dernières normes environnementales, énergétiques et acoustiques Garantie décennale Contactez moi dès maintenant afin d'étudier ensemble votre projet immobilier et d'affiner vos critères de recherche. Je pourrai ainsi vous transmettre les plans des lots susceptibles de vous correspondre, ainsi que la documentation complète.
Honoraires à la charge du vendeur. Dans une copropriété de 79 lots. Aucune procédure n'est en cours. Non soumis au DPE. Les informations sur les risques auxquels ce bien est exposé sont disponibles sur le site Géorisques : georisques.gouv.fr.
Votre conseiller ADRIA Immobilier : Jessica DESOGUS (Entreprise) Agent commercial (Entreprise individuelle) RSAC 833 499 494 RCP 157006917U001. *Tous les conseillers* ADRIA Immobilier sont des agents commerciaux indépendants de la SAS Adria Immobilier et Finance SA, immatriculée au RSAC (sans détention de fonds) titulaire de la carte de démarchage immobilier pour le compte de la société Adria Immobilier et Finance SAS.
80.22 m²
3 115 €
27 m²
4
3
2
1 (séparé)
1 sur 5
2026
Ouest
Oui
2
1
Oui (79 lots)
Contact Jessica DESOGUS
Contacter gratuitement à l'aide du formulaire ci-dessous.