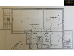
Proche toutes commodites, résidence de standing sécurisée aux normes BBC avec ascenseur. Appartement F3 comprenant : Entrée avec placard, Salon donnant sur loggia, Cuisine Us, SdE et Wc. 2 chambres dont une avec balcon. 2 parkings en sous sol et place extérieure privative. Normes handicapé. Le logement est actuellement loué 1090EUR/mois en bail meublé jusqu'au 11/09/2026. Charges 2400EUR/an (chauffage et eau inclus). + de biens sur www.abeille-conseilimmobilier.com
55 m²
4 091 €
3
2
1
1
2 sur 3
2013
2
Oui
3
Oui
Oui (58 lots)
Consommations énergétiques
Logement économe
113.9
Logement énergivore (kWhEP/m2/an)
Émissions de gaz à effet de serre
Faible émission de GES
26
Forte émission de GES(kgeqCO2/m2/an)
Contact Guillot Jean-Louis
Contacter gratuitement à l'aide du formulaire ci-dessous.