Saint Erblon - appartement 2 pièces 48.48m² Sud Ouest - rez-de-jardin - terrasse de 10.50m² - jardin de 39.50m² - ascenseur - stationnement
Saint-Erblon 35230
0
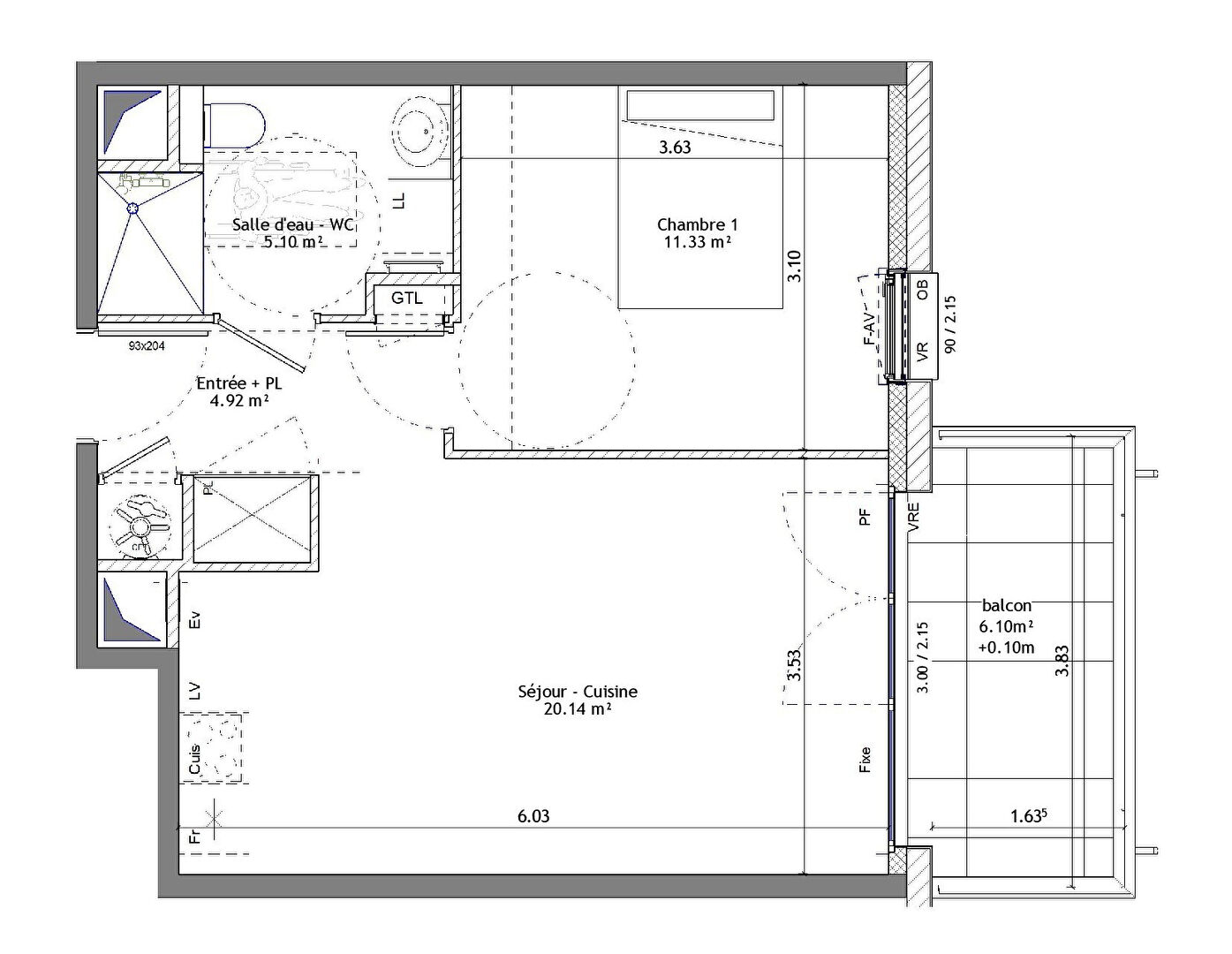
Saint Erblon - appartement 2 pièces 48.48m² Sud Ouest - rez-de-jardin - terrasse de 10.50m² - jardin de 39.50m² - ascenseur - stationnement Idéalement situé au sein d'une résidence à l'architecture contemporaine respectant les dernières normes RE2020, cet appartement de 2 pièces de 48.48 m² offre un cadre de vie serein et verdoyant, à proximité des commodités, des transports en commun et de toutes les facilités urbaines. Situé en rez-de-jardin et exposé Sud-Ouest, il comprend une entrée avec placard, un séjour avec cuisine ouverte, donnant accès à l'extérieur : une agréable terrasse de 10.40m² et un jardin de 39.50m², une chambre, une salle d'eau, wc indépendant, cellier. Ce bien bénéficie également d'une place de stationnement extérieur. Prix promoteur - frais de notaire réduits - Les informations sur les risques auxquels ce bien est exposé sont disponibles sur le site Géorisques : www.georisques.gouv.fr. Photos non contractuelles - Suggestions d'aménagements Copropriété de 19 lots - dont 19 lots habitation. (Pas de procédure en cours). Charges annuelles : 691 euros.