Saint Erblon - appartement 3 pièces 61.17m² Sud - 2ème étage - balcon 6.10m² - ascenseur - garage
Saint-Erblon 35230
0
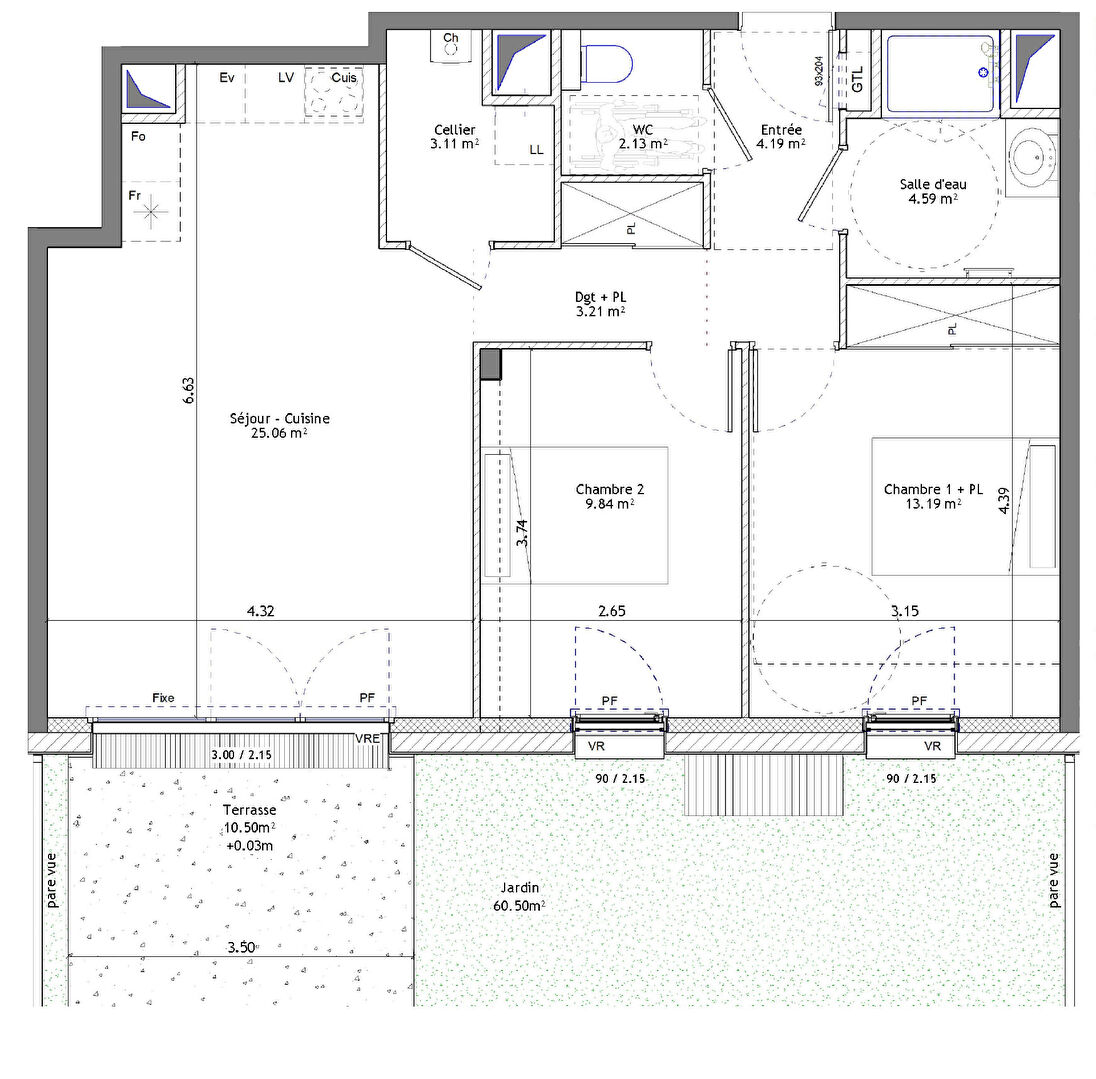
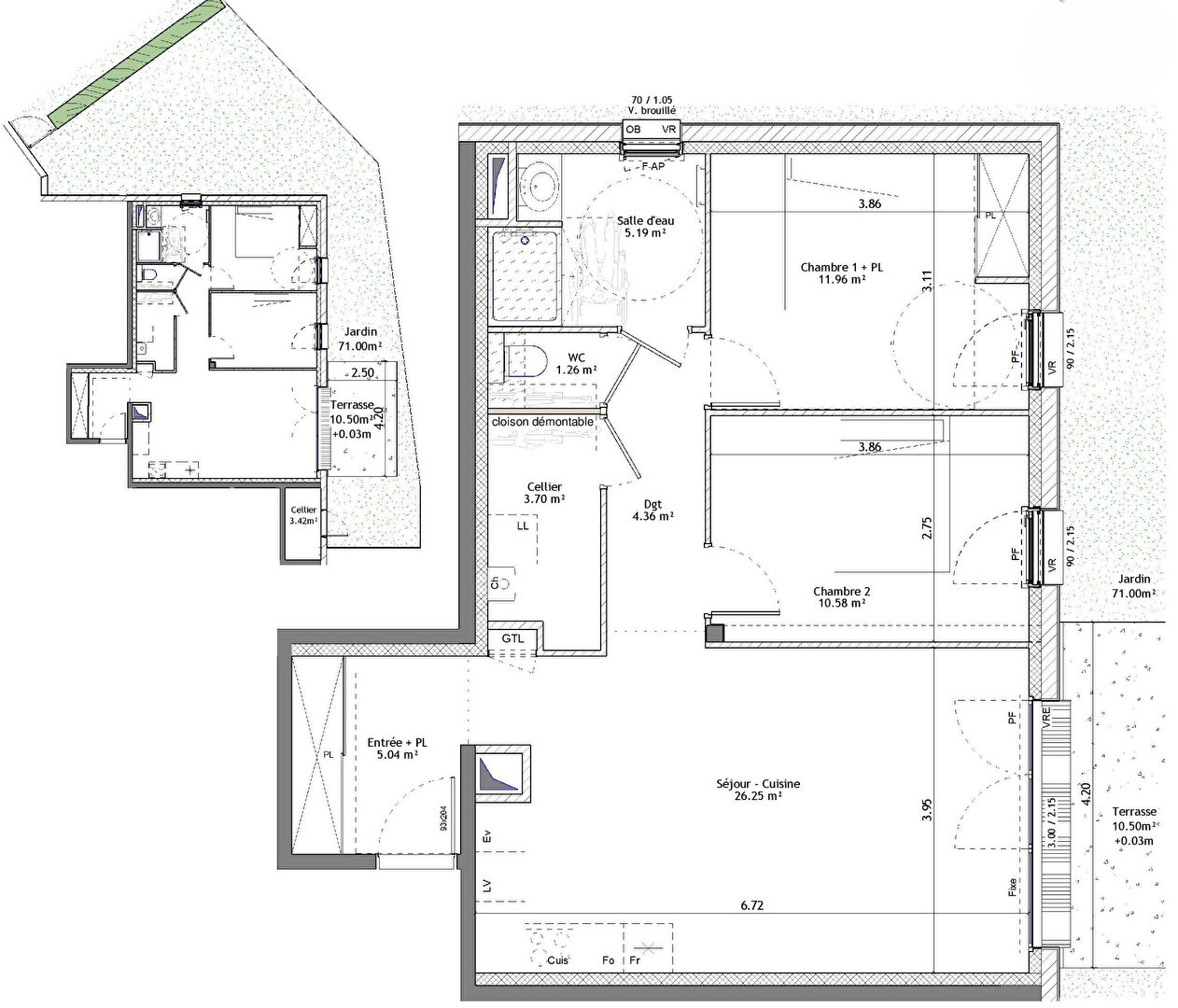
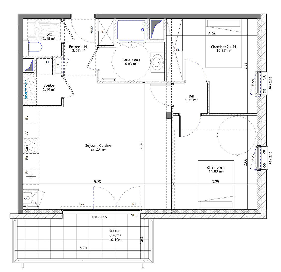
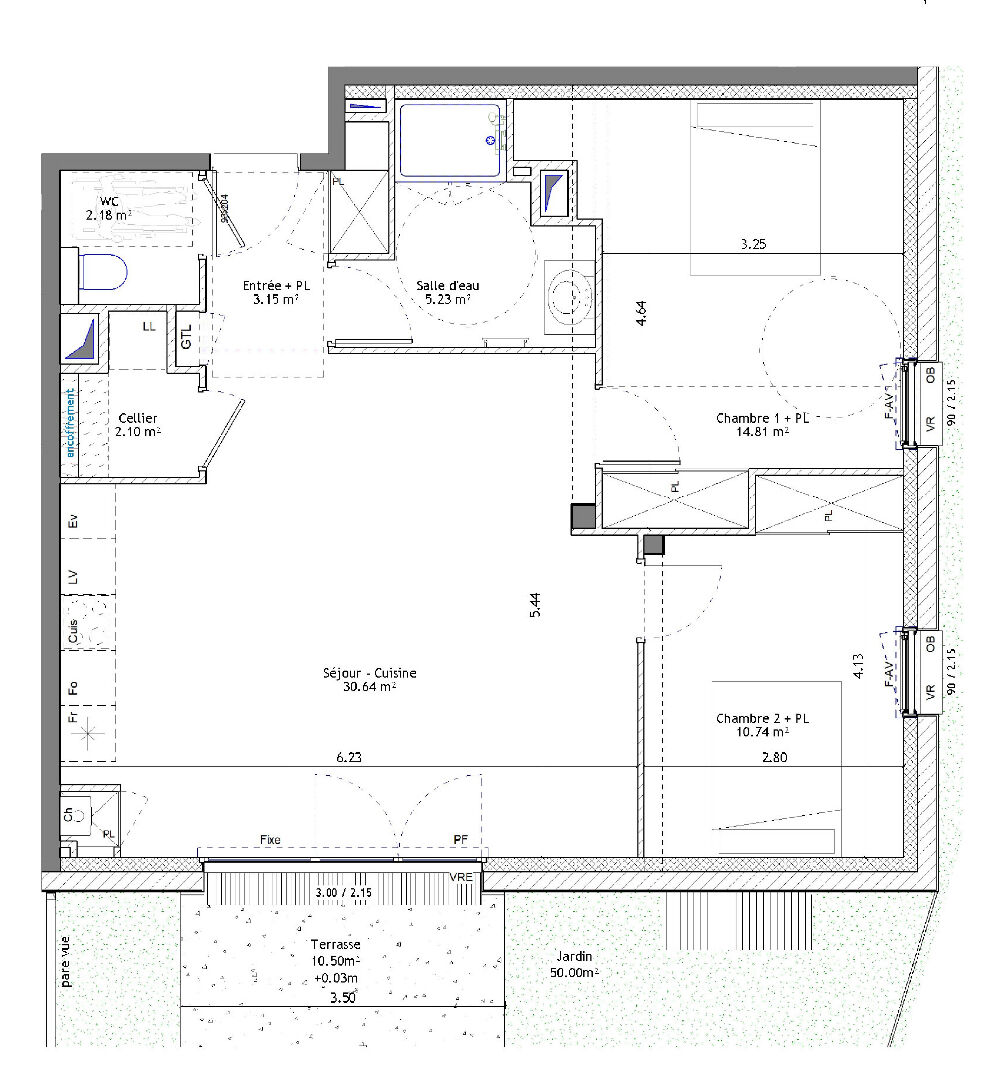
Saint Erblon - appartement 3 pièces 61.72m² Sud - 2ème étage - balcon 6.10m² - ascenseur - garage. Situé dans la charmante commune de Saint-Erblon, à seulement 15 minutes au sud de Rennes, cet appartement 3 pièces de 61,72 m² (64,97 m² au sol) offre un cadre de vie paisible et verdoyant, au sein d'une résidence respectant les dernières normes RE2020. Dans un cadre de vie privilégié avec des infrastructures modernes : écoles, commerces, services de proximité, associations culturelles et sportives et une excellente accessibilité Situé au 2ème étage avec ascenseur, cet appartement lumineux exposé plein Sud se compose de : Une entrée avec placard, un séjour avec cuisine ouverte, donnant sur un balcon de 6,10 m², deux chambres, une salle d'eau, WC indépendant, un cellier fonctionnel. Un garage en sous-sol vient compléter ce bien, offrant sécurité et praticité au quotidien. Un véritable havre de paix, alliant modernité, confort et sérénité, au coeur de Saint-Erblon. Une opportunité à ne pas manquer ! Prix promoteur - frais de notaire réduits - Les informations sur les risques auxquels ce bien est exposé sont disponibles sur le site Géorisques : www.georisques.gouv.fr. Photos non contractuelles - Suggestions d'aménagements Copropriété de 19 lots - dont 19 lots habitation. (Pas de procédure en cours). Charges annuelles : 878 euros.