Saint Erblon - appartement 3 pièces 66.92m² Sud Ouest- 1er étage - balcon 8.10m² - ascenseur - garage
Saint-Erblon 35230
0
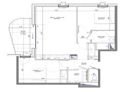
Saint Erblon - appartement 3 pièces 66.92m² Sud Ouest- 1er étage - balcon 8.10m² - ascenseur - garage sécurisé Situé dans une résidence contemporaine conforme aux normes RE2020, cet appartement offre un cadre de vie paisible et verdoyant, à proximité des commodités et des transports. D'une superficie de 66.92 m², il se trouve au premier étage avec ascenseur et bénéficie d'une orientation Sud Ouest. Ce bien se compose d'une entrée avec placard, d'un séjour salon lumineux avec cuisine ouverte donnant sur un balcon de 8.10 m², de deux chambres dont une avec placard, d'une salle d'eau, de WC indépendants et d'un cellier. Un garage en sous-sol sécurisé complète ce lot.- Les informations sur les risques auxquels ce bien est exposé sont disponibles sur le site Géorisques : www.georisques.gouv.fr. Photos non contractuelles - Suggestions d'aménagements Copropriété de 19 lots - dont 19 lots habitation. (Pas de procédure en cours). Charges annuelles : 950 euros.