Saint Grégoire Plein centre-ville - T3 Terrasse - Parking doubl
Saint-Grégoire 35760
0
Honoraires à la charge de l'acquéreur (Prix hors honoraires : 230000 euros).
Nouveauté Cabinet Lecomte Mandat de confiance Quartier ST Grégoire La Forge
Au coeur de Saint Grégoire à deux pas de commerces, dans une résidence récente.
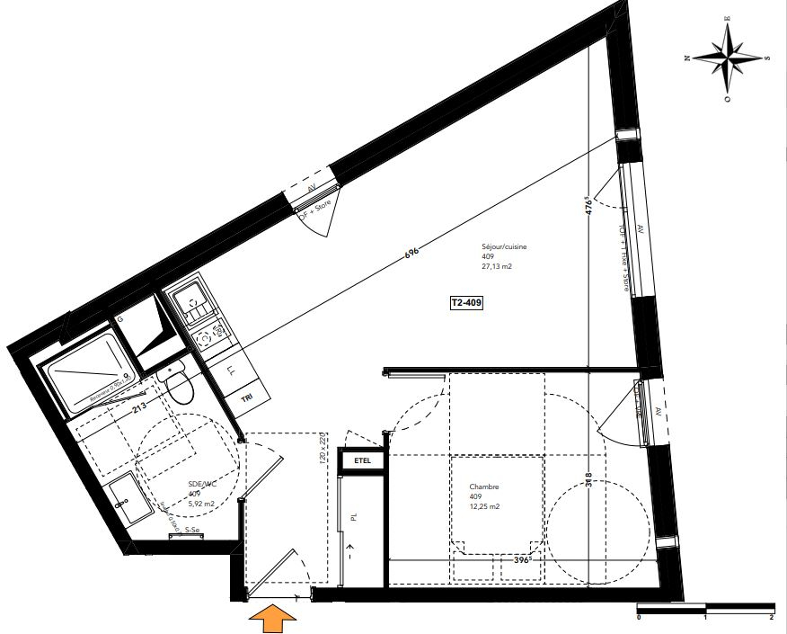
Appartement de type 3 au dernier étage qui se compose d'une entrée avec placard, un séjour lumineux ouvrant sur une terrasse exposée Ouest, cuisine séparée possible cuisine US, deux chambres, salle de bains et W.C séparés.
Un parking double en sous-sol.
Pour plus d'informations veuillez contacter M COLEOU Guillaume au 07 55 59 97 11
Estimation gratuite sous 48h
Honoraires inclus de 5% TTC à la charge de l'acquéreur. Prix hors honoraires 230 000 . Dans une copropriété de 28 lots. Quote-part moyenne du budget prévisionnel 1 040 /an. Aucune procédure n'est en cours. Classe énergie D, Classe climat D Montant moyen estimé des dépenses annuelles d'énergie pour un usage standard, établi à partir des prix de l'énergie de l'année 2021 : entre 529.00 et 717.00 . Les informations sur les risques auxquels ce bien est exposé sont disponibles sur le site Géorisques : georisques.gouv.fr. . Pour plus de renseignements, vous pouvez contacter Guillaume COLEOU au 07.55.59.97.11.