Saint Herblain - À louer plateau de bureaux 216 m²
Saint-Herblain 44800
0
Honoraires à la charge de l'acquéreur (Prix hors honoraires : 0 euros).
Les charges de location sont prévisionnelles mensuelles avec régularisation annuelle.
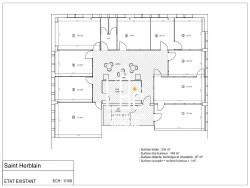
SAINT HERBLAIN ATLANTIS ARMOR Plateau de bureaux à louer de 216 m², au 1er étage sans ascenseur, bureaux de 10 à 21 m². Entrée indépendante, parties communes comprenant 1 local technique, 1 espace détente, dégagement et sanitaires. Parkings extérieurs mutualisés. A proximité de la sortie périphérique PORTE D'ARMOR sortie n° 33, de la ligne 1 du tramway arrêt FRANCOIS MITTERAND, à 3 minutes en voiture du centre commercial Atlantis. A 10 minutes de l'aéropport de Nantes ATLANTIQUE - 10 bureaux avec cloisons modulables - Baie de brassage - Chauffage gaz collectif - Bail 3/6/9/ Professionnel ou bail dérogatoire de 1 mois à 36 mois - Loyer mensuel : 1260 HT - Provision sur charges mensuel : 360 HT - Taxe foncière : 1440 - Dépôt de garantie : 2 mois de loyer HT DISPONIBILITÉ IMMÉDIATE Honoraires de commercialisation 25% du loyer annuel HT, frais de rédaction en sus Pour plus d'informations contactez-nous au 02 55 07 86 35
Honoraires de 3 780 à la charge du locataire. Provision sur charges 360 HT/mois, régularisation annuelle. Dépôt de garantie 2 520 . Non soumis au DPE. Les informations sur les risques auxquels ce bien est exposé sont disponibles sur le site Géorisques : georisques.gouv.fr.