Honoraires à la charge de l'acquéreur (Prix hors honoraires : 197000 euros).
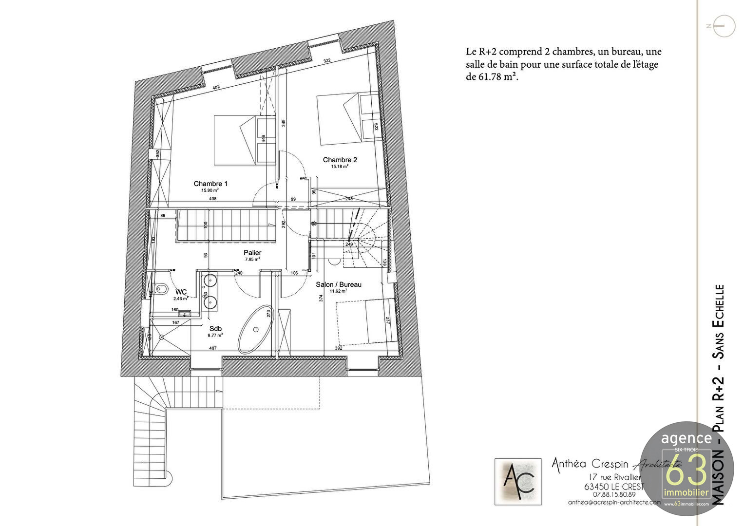
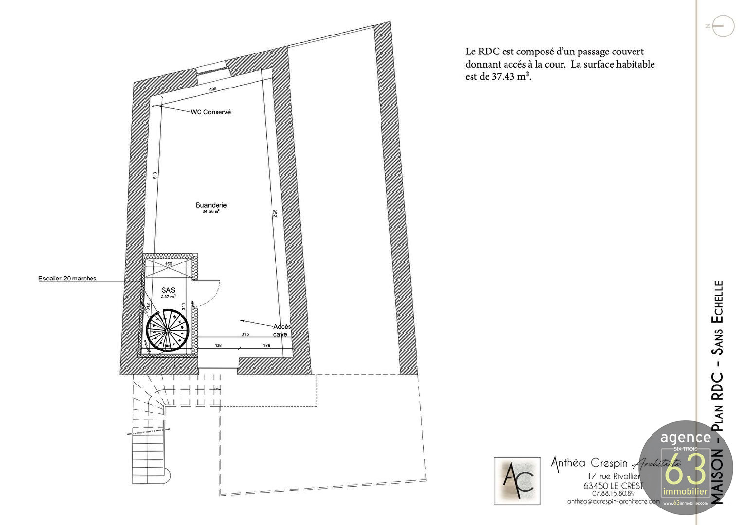
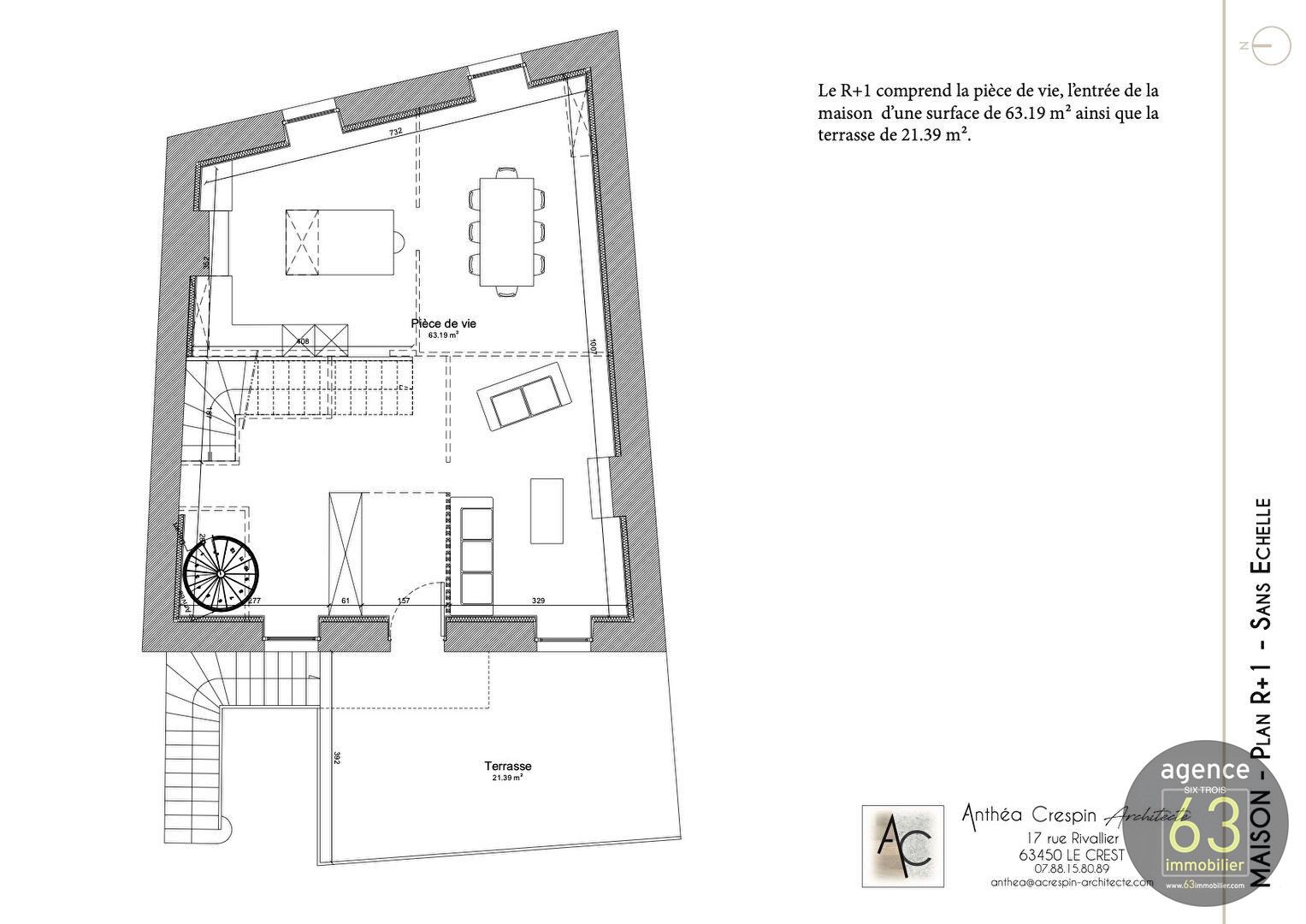
Maison de campagne 164 m² habitables Charme, volume et authenticité Située dans un environnement calme et verdoyant, à proximité des commodités. Belle maison de caractère mêlant cachet de l'ancien et confort moderne. Pièce de vie lumineuse avec cheminée, ambiance chaleureuse assurée. Grande cuisine équipée, conviviale et fonctionnelle. Buanderie spacieuse avec four à pain, idéale pour les amoureux de l'authenticité. Chambre parquet châtaignier au rez-de-chaussée + salle d'eau double vasque et toilettes avec lave-mains. À l'étage : plusieurs chambres parquetées, salle de bain avec baignoire d'angle, toilettes indépendantes et vaste dégagement. Grande pièce de 37,5 m² avec arrivée d'eau et d'électricité : parfait pour créer une suite parentale, un bureau ou une salle de jeux. Accès grenier offrant encore des possibilités d'aménagement. Grange attenante de 81 m², idéale pour du stockage, un atelier ou un futur projet.
Proche de toutes les commodités, une école élémentaire se trouve à seulement 5 minutes à pied. Plusieurs parcs et jardins sont également accessibles à proximité. Les commodités les plus proches se trouvent à quelques minutes en voiture. Ne manquez pas cette opportunité de vivre dans une maison de campagne exceptionnelle, où chaque détail a été pensé pour votre confort et votre épanouissement.
Disponible par téléphone 7/7 n'hésitez pas à nous contacter pour prévoir une visite.
Ce bien vous est proposé par l'agence 2A Immo Agence de Pontgibaud, numéro SIRET 925 244 188 Mme Alexane DRIJARD Agent Immobilier CPI numéro 6302 2024 000 000 011 .
Honoraires inclus de 6.6% TTC à la charge de l'acquéreur. Prix hors honoraires 197 000 . Classe énergie E, Classe climat B Montant estimé des dépenses annuelles d'énergie pour un usage standard : entre 4750.00 et 6480.00 sur les années 2021, 2022 et 2023 (abonnements compris). Les informations sur les risques auxquels ce bien est exposé sont disponibles sur le site Géorisques : georisques.gouv.fr.