Honoraires à la charge de l'acquéreur (Prix hors honoraires : 260000 euros).
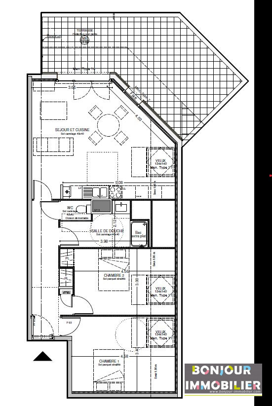
L'agence Peak Immobilier vous propose ce bel appartement de 96m2, sur le territoire de Saint-Jeoire. Il se trouve au premier étage d'un bâtiment de 3 niveaux et respecte les normes PMR puisque son accès se fait de plein pieds, depuis l'extérieur. Sa grande cuisine semi-ouverte sur le salon séjour, sa grande salle de bain, ses 2 belles chambres et sa petite suite parentale font de cet appartement une résidence familiale de choix. Car grâce aux raffraichissement à effectuer, ces derniers vous permettront d'acquérir cet appartement spacieux à un prix raisonnable pour notre belle région et d'en faire votre cocon à moindre côut. Chose appréciable également pour votre bien-être, l'existence d'une clim réversible et d'un classement énergétique C vous promettent confort été, comme hiver. Ce logement vous fait bénéficier d'une cave de 6m2, d'un balcon de 3m2 avec une belle vue dégagée, ainsi que 2 emplacements de parking privatifs. Un extérieur plus spacieux serait un plus, cependant, Saint-Joire est une jolie commune, en développement et propose de nombreux parc, balades aux bord de l'eau où pourrons profiter petits et grands sans avoir à penser à l'entretien ! Côté copropriété, seulement 4 lots d'habitation, de très faibles charges puisque très peu de parties communes, et aucun travaux à réliser, seul l'assurance du bâtiment est à prévoir.
96.48 m²
2 799 €
3 m²
18 m²
5
3
1
1
1
1 sur 3
3.85 %
1948
Sud
1 (3 m²)
Oui
2
Oui
Oui
Oui
Oui (11 lots)
Consommations énergétiques
Logement économe
114
Logement énergivore (kWhEP/m2/an)
Émissions de gaz à effet de serre
Faible émission de GES
3
Forte émission de GES(kgeqCO2/m2/an)
Contact PEAK IMMOBILIER NCI Bonne
Contacter gratuitement à l'aide du formulaire ci-dessous.