SAINT-MALO - Maison neuve 3 Pièces - 81.37 m² - Terrain 500m² - garage
Saint-Malo 35400
0
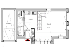
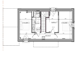
SAINT-MALO - Maison neuve 3 Pièces - 81.37 m² - Terrain 500m² - garage Aux portes de Saint Malo, dans un cadre préservé proche de la nature, au sein d'un petit hameau, maison indépendante 3 pièces de 81.37m², à proximité des commerces, des établissements de santé, des pôles économiques et des principaux axes de transport. Cette maison de 3 pièces offre de belles prestations : matériaux nobles et durables, ainsi que par son agencement optimisé, pensé pour le confort et la luminosité. Rez-de-chaussée : une entrée avec placard, belle pièce de vie de 34.86 m² avec cuisine ouverte, baignée de lumière, WC avec point d'eau. A l'étage : Deux chambres, un pièce bureau, salle d'eau avec WC. Extérieurs : Garage et un terrain de 500m² Transports : Ligne de bus à proximité et gare TGV à seulement 10 minutes en voiture. Accessibilité : Accès rapide aux grands axes vers Rennes (50 min) et Dinan (25 min). Vie quotidienne : Centres commerciaux, zone d'entreprises et futur hôpital à 2 minutes seulement. Prix direct promoteur - Frais de notaire réduits - Accession libre - PTZ possible (sous conditions). Retrouvez toutes les informations relatives aux risques sur www.georisques.gouv.fr Photos non contractuelles - Suggestions d'aménagement.