SAINT MALO - Appartement 2 pièces 42.50m² Ouest - 1er étage - ascenseur - loggia 9.60m² - stationnement
Saint-Malo 35400
0
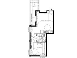
SAINT MALO - Appartement 2 pièces 42.50m² Ouest - 1er étage - ascenseur - loggia 9.60m² - stationnement en sous-sol sécurisé. Situé à l'entrée de Saint-Malo, côté Saint-Servan, cet appartement au 1er étage d'une résidence contemporaine avec ascenseur bénéficie d'un emplacement intéressant. Il offre une bonne accessibilité : Rennes est accessible en 45 minutes via la voie express, et la gare TGV se trouve à seulement 9 minutes en voiture ou en bus. Toutes les commodités sont à proximité : boulangerie, supérette, centres commerciaux, ainsi que des établissements scolaires, de la maternelle au lycée. Il se compose d'un séjour salon avec cuisine ouverte, donnant accès à une loggia de 9.60m² à l'Ouest, une chambre, une salle d'eau avec wc. Stationnement en sous-sol sécurisé. Idéal pour un achat en principal - secondaire ou investissement locatif. Prix promoteur - frais de notaire réduits - Les informations sur les risques auxquels ce bien est exposé sont disponibles sur le site Géorisques : www.georisques.gouv.fr. Photos non contractuelles - Suggestions d'aménagements Copropriété de 40 lots - dont 40 lots habitation. (Pas de procédure en cours). Charges annuelles : 604 euros.