Saint Malo - Appartement 3 pièces - 68.06m² - 1er étage - ascenseur - balcon 6m² - stationnements
Saint-Malo 35400
0
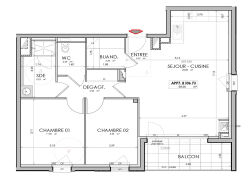
Saint-Malo - Appartement 3 pièces - 68.06m² - 1er étage - ascenseur - balcon 6m² - stationnements sécurisés A Saint-Malo, proche du secteur prisé de Paramé, découvrez ce spacieux appartement de 3 pièces de 68,06 m², situé au 1er étage avec ascenseur d'une résidence moderne et respectueuse des dernières normes environnementales (RT 2020). L'espace de vie se compose d'une entrée avec grande buanderie, d'un séjour lumineux avec cuisine ouverte, prolongé par un balcon de 6 m², un dégagement avec placard dessert deux chambres, une salle d'eau et des wc indépendants. Pour plus de praticité, ce bien dispose d'un stationnement sécurisé en sous-sol ainsi que d'une place de parking privative en extérieur. Les points forts de cet appartement : Haute performance énergétique : isolation renforcée et équipements innovants pour des économies au quotidien. Un emplacement interessant : à seulement 3,5 km de la mer et des plages emblématiques de Saint-Malo. Vie pratique : commerces, supermarchés, boulangeries, marché bihebdomadaire, bureau de poste, coopérative bio, pôle médical Cap Sud et pharmacie à proximité. Mobilité : 2 lignes de bus et la gare TGV à moins de 10 minutes. Prix promoteur - frais de notaire réduits - Les informations sur les risques auxquels ce bien est exposé sont disponibles sur le site Géorisques : www.georisques.gouv.fr. Photos non contractuelles - Suggestions d'aménagements Copropriété de 39 lots - dont 39 lots habitation. (Pas de procédure en cours). Charges annuelles : 979 euros.