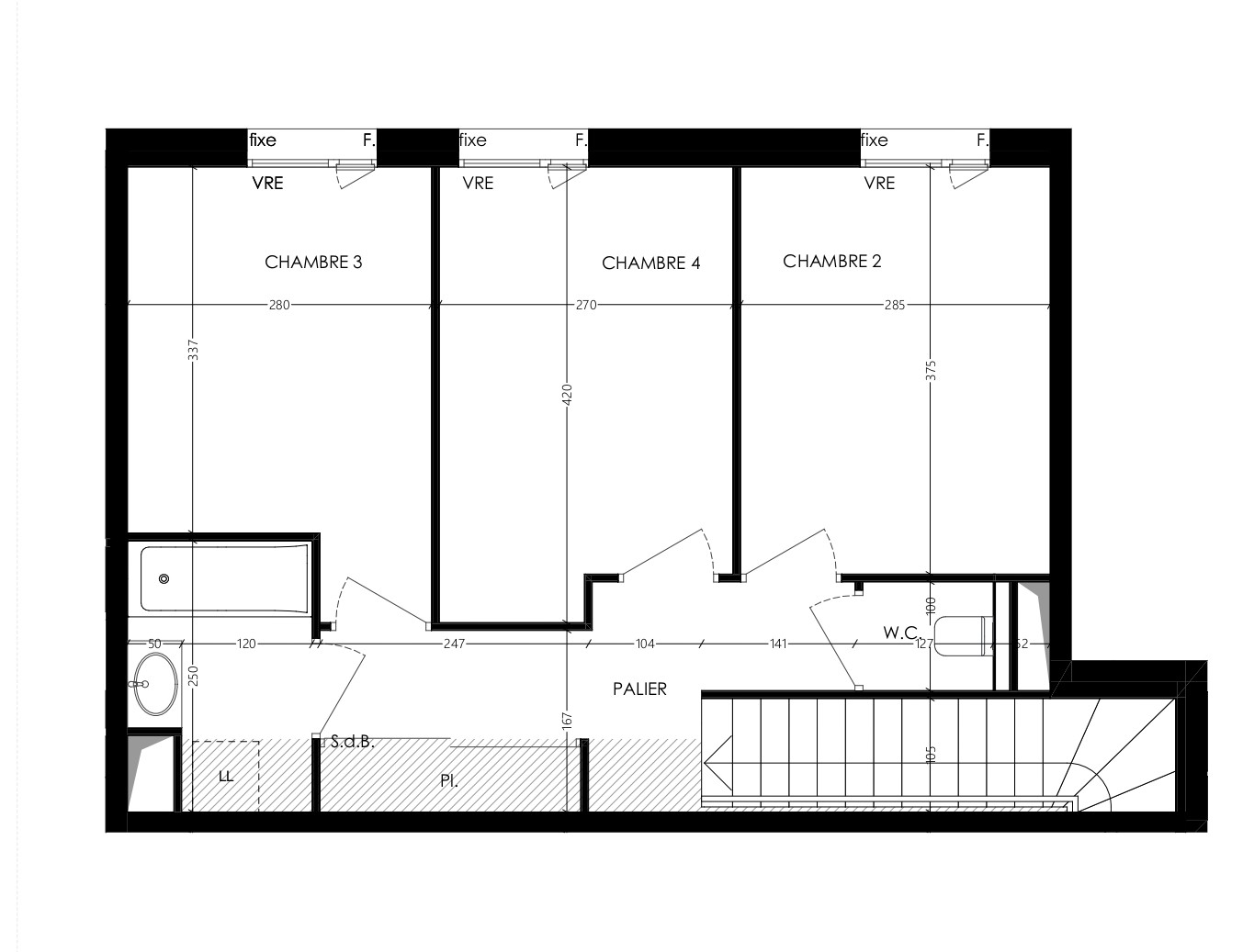
Goodshowcase

Vente appartement 4 pièces
440 000 €

Annonces similaires

Vente appartement

Saint-Malo 35400 - 0

505 500 €

...Vous y trouverez cet appartement 4 pièces au 2ème étage comprenant : Une entrée avec placard, 3...

Voir l'annonce

Vente appartement

Saint-Malo 35400 - 0

460 000 €

...Sa localisation privilégiée offre un environnement sans vis-à-vis, propice à la tranquillité...

Voir l'annonce

Vente appartement

Saint-Malo 35400 - 0

420 000 €

...Vue sur les Bas-Sablons, la tour Solidor, le Fort National et Intra-muros...

Voir l'annonce

Vente appartement

Saint-Malo 35400 - 0

449 000 €

...49m² - loggia/terrasse de 14...

Voir l'annonce

Vente appartement

Saint-Malo 35400 - 0

515 000 €

...Emplacement central : A pied : 8 min gare, 15 min plage des Bas Sablons/St Servan, 18 min Sillon,...

Voir l'annonce