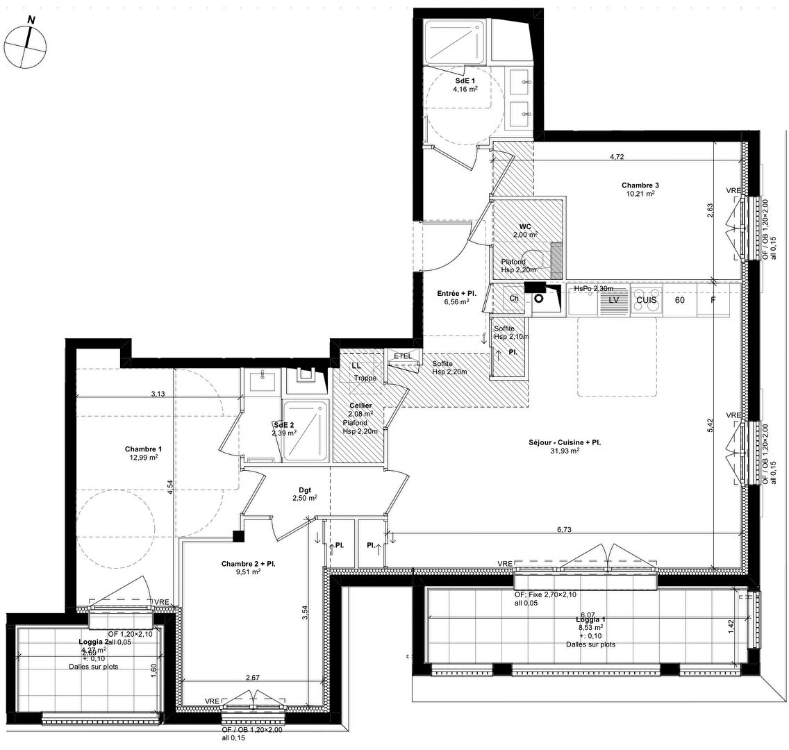
Saint-Malo - quartier Gare - Appartement T4 de 77 m2 avec balcon et parkings
Saint-Malo 35400
0
COGIR Neuf vous propose : SAINT-MALO - quartier de la gare- Idéalement située proche de la mer et à 5 min à pied de la gare, venez découvrir cette nouvelle résidence de 82 logements pour habiter ou investir. Vous y trouverez cet appartement 4 pièces au 2ème étage comprenant : Une entrée avec placard, 3 chambres, une salle de bain, un WC séparé et un séjour cuisine de 27 m2 donnant sur un spacieux balcon de 28 m2 exposé Sud-Ouest. L'appartement dispose également de 2 places de parking en souterrain. Eligible au dispositif PINEL. T3 à partir de 346 000 euros TTC T4 à partir de 505 500 euros TTC T5 à partir de 650 000 euros TTC Corinne BOUFFORT : 06.08.47.94.30 - CBN9988