SAINT MALO - ST SERVAN CENTRE - Appartement 4 pièces 92.70m² Ouest - terrasses 19.50m² et jardin 32.50m² stationnement
Saint-Malo 35400
0
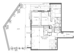
SAINT MALO - ST SERVAN CENTRE - Appartement 4 pièces 92.70m² Ouest - terrasses 19.50m² et jardin 32.50m² cave - stationnement en sous-sol sécurisé. Idéalement situé au coeur de Saint-Servan, cet appartement bénéficie d'un emplacement exceptionnel, à proximité immédiate des commerces, du centre animé de Saint-Servan, des bassins, ainsi que de la plage et du port des Bas-Sablons. A seulement 300 mètres de la place de la Mairie et du marché, 1 km du Centre Historique - Intra-Muros et 1,3 km de la gare, ce bien allie commodité et praticité. Écoles, transports, cabinet médical et hôpital sont également accessibles en quelques minutes. Dans une résidence contemporaine, offrant une architecture soignée et élégante, découvrez cet appartement de 4 pièces de 92,70 m² en rez-de-jardin, pensé pour offrir confort et modernité. L'entrée mène à un spacieux séjour-salon avec cuisine ouverte, baigné de lumière grâce à son accès direct à une terrasse exposée à l'Ouest et à un jardin privatif de 32,50 m², parfait pour profiter des journées ensoleillées. Le dégagement dessert trois chambres, chacune bénéficiant d'un accès à une seconde terrasse, offrant ainsi un espace extérieur supplémentaire pour un cadre de vie unique. Vous apprécierez également une salle de bains, une salle d'eau, ainsi qu'un WC indépendant, garantissant confort et fonctionnalité. En complément, cet appartement dispose d'un stationnement privatif en sous-sol et d'une cave, des atouts essentiels pour faciliter votre quotidien. prix promoteur, avec des frais de notaire réduits, ce bien est une opportunité pour ceux qui souhaitent s'installer dans un cadre entre terre et mer, ou investir dans un quartier dynamique et recherché. Les informations sur les risques auxquels ce bien est exposé sont disponibles sur le site Géorisques : www.georisques.gouv.fr. Photos non contractuelles - Suggestions d'aménagements Copropriété de 39 lots - dont 39 lots habitation. (Pas de procédure en cours). Charges annuelles : 1339 euros.