SAINT MALO - ST SERVAN CENTRE - PROGRAMME IMMOBILIER - Vente appartements neufs
Saint-Malo 35400
0
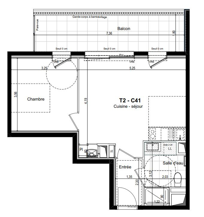
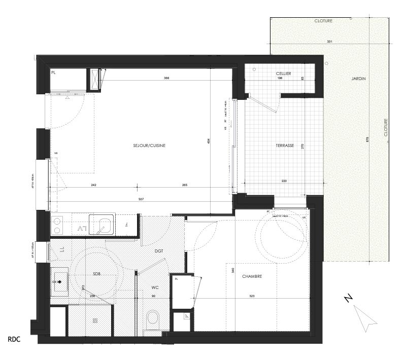
SAINT MALO - ST SERVAN CENTRE - Vente appartements neufs Du 1 au 5 pièces - Livraison à partir du 2ème trimestre 2025 Idéalement située à deux pas des commerces, du centre de St Servan, des bassins, de la plage et port des Bas-Sablons, du quartier de Solidor... à 300 mètres de la place de la Mairie et du marché, à 1 km du Centre Historique - Intra-Muros, à 1.3 km de la Gare.. Commodités, Hôpital, Cabinet Médical, Écoles, transports.... Et bénéficiant une proximité immédiate de la mer avec un panorama exceptionnel ! Cette nouvelle résidence aux dernières normes RT2012 est répartis entre deux bâtiments à l'architecture soignée, nous vous proposons des appartements neufs du studio au 5 pièces disposant chacun d'un espace extérieur, qu'il s'agisse d'un balcon ou d'une terrasse. Les plus chanceux pourront se délecter quotidiennement d'une vue sur les bassins ou sur l'intramuros. Le quartier de Saint-Servan-sur-Mer vous séduira à plus d'un titre : un port, plusieurs plages, plus de 200 boutiques, de multiples restaurants et bars, un marché couvert bi-hebdomadaire... Prix promoteur - frais de notaire réduits -normes RT2012. Les informations sur les risques auxquels ce bien est exposé sont disponibles sur le site Géorisques : www.georisques.gouv.fr Copropriété de 39 lots - dont 39 lots habitation. (Pas de procédure en cours). Charges annuelles : 512 euros.