Situé dans une petite rue calme de Saint-Malo, ce bel appartement de 65,81 m² (loi Carrez) bénéficie d'un emplacement rare avec vue sur la mer.
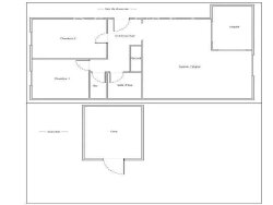
Implanté au rez-de-chaussée côté rue mais s'élevant au premier étage côté mer, il offre une organisation en étoile idéale :
Côté Est : deux chambres lumineuses,
Côté Ouest : un salon avec cuisine ouverte donnant sur la mer, prolongé par une loggia de 7 m².
L'appartement est traversant, ce qui garantit luminosité et ventilation naturelle.
Il dispose également d'une salle d'eau, de WC indépendants, d'une cave et d'un stationnement protégé.
73 m²
9 521 €
3
2
1
1
1
Ouest
Oui
Oui
Consommations énergétiques
Logement économe
253
Logement énergivore (kWhEP/m2/an)
Émissions de gaz à effet de serre
Faible émission de GES
54
Forte émission de GES(kgeqCO2/m2/an)
Contact Jean-Baptiste CERVESI
Contacter gratuitement à l'aide du formulaire ci-dessous.