SAINT MARTIN D'ARDECHE / APPARTEMENT 38 m² / PLATEAU BRUT OU CLE EN MAIN
Saint-Martin-d'Ardèche 07700
0
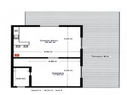
Appartement de 38 m² dans une copropriété bénévole de 7 lots, composé d'une pièce de vie, 1 chambre, salle d'eau avec WC et une terrasse privative.
Chauffage et eau chaude individuel.
Ancien hôtel de l'auberge des gorges en cours de transformation en appartements.
Vue sur les gorges de l'Ardèche, stationnement privatif.
Situé a l'entrée des gorges, à 1 min de la plage de Sauze, du village de Saint Martin d'Ardèche.
Nombreuses activités touristiques, aquatiques, restaurants, guinguettes.
A 40 min de Vallon pont d'Arc
Projet en cours de découpe et rénovation, pré-commercialisation des lots (7 autres lots disponibles).
4 possibilités sur ce lot n° 5 :
Plateau brut avec eau / électricité : 89 650 €
Plateau brut avec eau / électricité / menuiseries : 97 300 €
Plateau brut avec eau / électricité / menuiseries / cloisons : 102 800 €
Appartement clé en main : 110 300 €
Durée envisagée pour un projet clé en main entre 12 et 24 mois possibilité d'acquisition plus rapide sur un plateau brut.
Idéal pour une résidence secondaire, un investissement locatif ou un première acquisition.
Les photos de l'appartement sont à titre indicatif et ne reflètent pas exactement le résultat final.
Cette annonce référence 312204 vous est présentée par votre agent commercial BSK Immobilier MICKAËL GAUDISSARD (EI) immatriculé au RSAC de ROMANS-SUR-ISERE (26100) sous le numéro 51861585100038.
Prix du bien : 110 300,00 €
Les honoraires d'agence sont à la charge du vendeur.
DPE vierge.
Les informations sur les risques auxquels ce bien est exposé sont disponibles sur le site Géorisques : www.georisques.gouv.fr
38 m²
2 903 €
2
1
1
1
1970
Ouest
Oui
Contact GAUDISSARD MICKAËL
Contacter gratuitement à l'aide du formulaire ci-dessous.