Honoraires à la charge de l'acquéreur (Prix hors honoraires : 170000 euros).
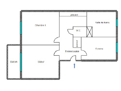
EN EXCLUSIVITÉ ! votre agence GMJ IMMOBILIER vous propose cet appartement traversant de 2 pièces situé au premier étage sans ascenseur, situé dans une jolie résidence verdoyante de type provençal. Il comprend : une entrée,un séjour, une cuisine indépendante, une chambre, wc, une salle de bains. Un balcon. Parking libre dans la résidence. L'appartement bénéficie du double vitrage. Cet appartement est vendu loué, offrant ainsi une opportunité d'investissement. N'hésitez pas à nous contacter pour organiser une visite ou pour toute question supplémentaire.
POUR PLUS D'INFORMATIONS contactez notre agence au 04.83.12.04.40 Les informations sur les risques auxquels ce bien est exposé sont disponibles sur le site Géorisques : www.georisques.gouv.fr
48 m²
3 729 €
15 m²
2
1
1
1
1 sur 2
5.29 %
103 € / mois
1975
Nord
1
Oui (66 lots)
Consommations énergétiques
Logement économe
213
Logement énergivore (kWhEP/m2/an)
Émissions de gaz à effet de serre
Faible émission de GES
6
Forte émission de GES(kgeqCO2/m2/an)
Contact Gmj Immobilier
Contacter gratuitement à l'aide du formulaire ci-dessous.