Saint Sulpice - Sublime duplex en dernier étage. Balcon.
Paris 75006
0
Honoraires à la charge du vendeur.
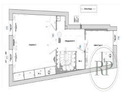
ROSSI PROPERTIES vous propose en exclusivité, à quelques pas de la célèbre Place Saint-Sulpice, au cœur du très prisé 6ème arrondissement de Paris, un bien d'exception niché au dernier étage d'un immeuble ancien de charme. Un appartement rare, baigné de lumière et ouvert sur l'horizon parisien D'une superficie de 122 m² carrez, ce bien se compose d'un appartement principal en duplex, entièrement climatisé, bénéficiant d'un balcon filant offrant une vue imprenable sur les tours majestueuses de l'église Saint-Sulpice.
Situé aux 5ème et 6ème étages avec ascenseur, il a fait l'objet d'une rénovation de grande qualité, mêlant harmonieusement éléments anciens (poutres apparentes, volumes élégants) et confort contemporain. Il se compose comme suit : Une entrée avec toilettes invités. Une vaste pièce de vie lumineuse avec une cuisine ouverte discrètement intégrée. Accès direct au balcon filant, exposé plein ciel, avec vue sur Saint-Sulpice. Une première chambre avec salle d'eau et rangements. Une deuxième chambre côté cour arborée, avec salle de bains et grand dressing mural. À l'étage supérieur, un escalier élégant mène à la suite parentale, pleine de charme avec sa charpente apparente, ses nombreux rangements, ses toilettes séparées, et sa salle d'eau. Vue dégagée sur la cour arborée et, en point de mire, le sommet de la Tour Eiffel.
122 m²
30 328 €
4
3
1
2
2
5 sur 6
Est
Ouest
1
Oui
Oui
Oui
Oui
Oui
Oui
Oui (20 lots)
Consommations énergétiques
Logement économe
219
Logement énergivore (kWhEP/m2/an)
Émissions de gaz à effet de serre
Faible émission de GES
28
Forte émission de GES(kgeqCO2/m2/an)
Contact ROSSI Laetitia
Contacter gratuitement à l'aide du formulaire ci-dessous.