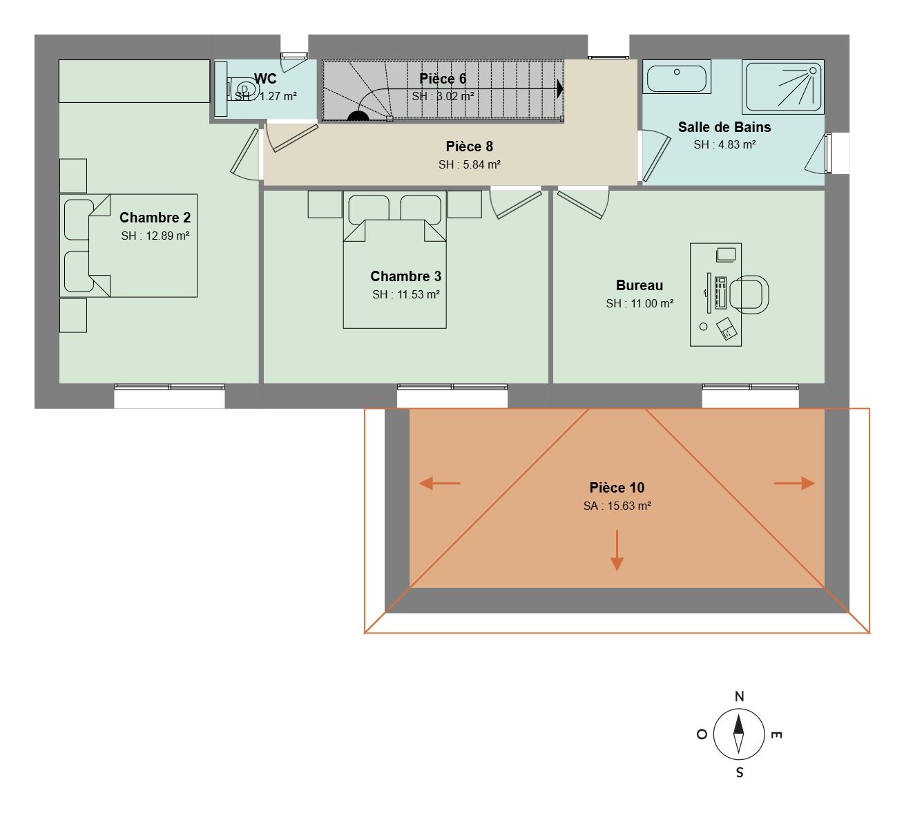
Entre la plage de Portissol et la plage de Beaucours, villa neuve de 122 m2 entièrement climatisée offrant une très belle pièce de vie de 54 m2 avec cuisine équipée, baies vitrées à galandage sur terrasse et jardin. 4 chambres dont une 1 chambre en rdc à cloisonner avec salle d'eau, et à l'étage 3 chambres dont 1 avec salle d'eau. Les deux autres chambres se partagent une salle de bains. Balcon avec vue piscine et jardin. Garage à motos et vélos. Local technique, stationnement sur terrain de 400 m2 clos et arboré avec piscine traditionnelle carrelée.
122 m²
7 336 €
6
4
1
2
2
2021
Sud
Ouest
1
1
1
Oui
Oui
Oui (2 lots)
Consommations énergétiques
Logement économe
39
Logement énergivore (kWhEP/m2/an)
Émissions de gaz à effet de serre
Faible émission de GES
1
Forte émission de GES(kgeqCO2/m2/an)
Contact Weber Immobilier
Contacter gratuitement à l'aide du formulaire ci-dessous.