SECTEUR 31240-31180 Á PROX ST-GENIES B. MAISON - 5P - CALME,
Saint-Génies-Bellevue 31180
0
Honoraires à la charge du vendeur.
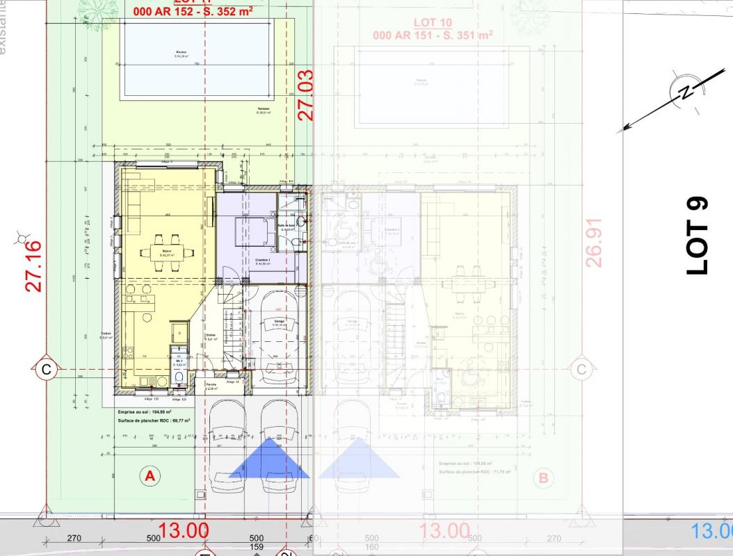
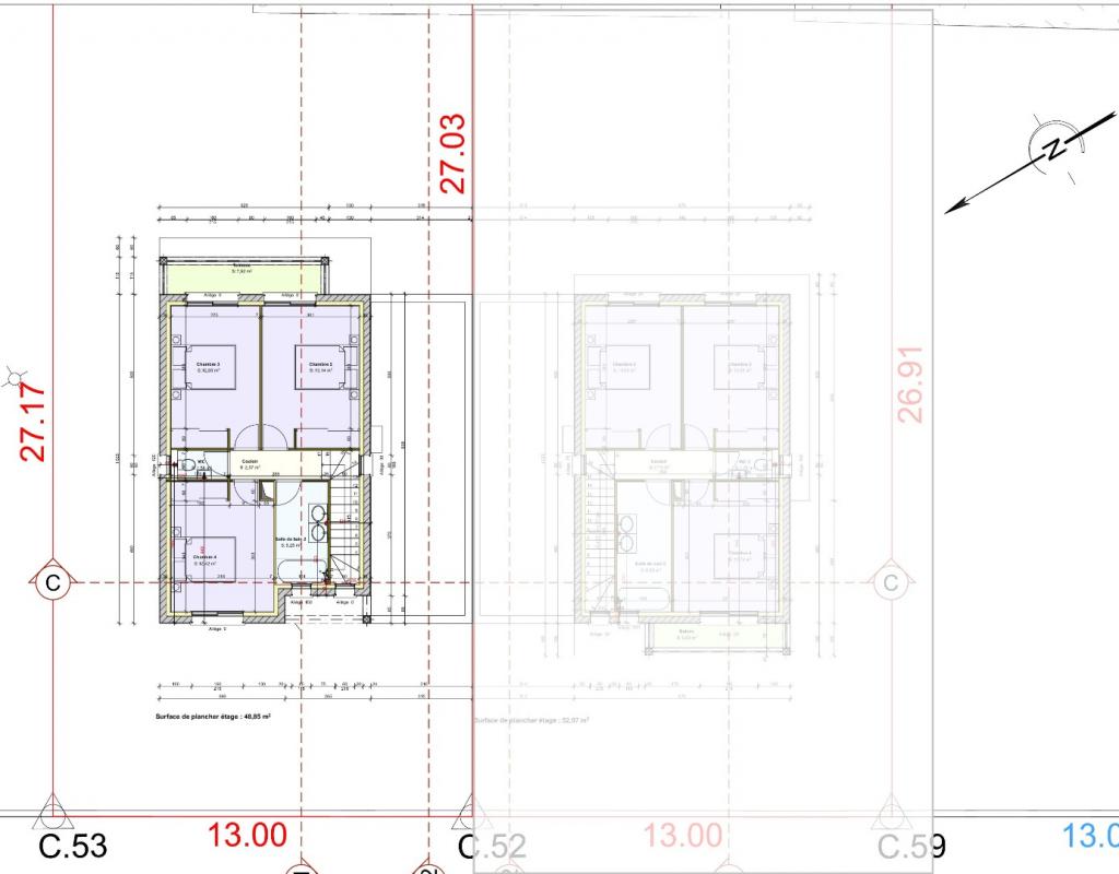
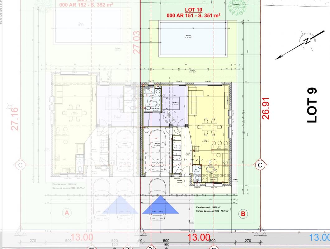
[ BIEN-VENDU ou SOUS-PROMESSE Appel / Liste d'attente - Me consulter, par tel. uniquement, SI VOUS DÉSIREZ VENDRE AUTREMENT votre bien immobilier en Région Toulousaine. Info sommaire en photos + Flyer recto-verso / Présentation détaillée en RDV. ] - Méthode, rigueur, efficacité, bon tarif, commercialisation plus dense en 3 MOIS grâce à une mission de vente spécialement dédiée sur mesure. Au préalable, étude exhaustive, acheteur préfinancé. Service différent de l'Agence ou du Réseau mandataire conventionnel. Service Immobilier TOULOUSE Région représenté par Hervé NOZERAN proposant de bénéficier d'un concept et d'une mission de vente dénommée *Valorisation Implication Prioritaire. Entre autres atouts du concept VIP* la multidiffusion de l'annonce dans une large zone de chalandise étudiée autant dans l'intérêt de l'acheteur que du vendeur. - EXTRAIT ANNONCE AVANT VENTE : - || CONTACT hors fériés et ponts du lundi 9H-18H30 au vendredi 18H00 UNIQUEMENT PAR TÉLÉPHONE DIRECT - PAS DE RÉPONSE par messagerie électronique du site d'annonce, ni par mail, ni sms routés non lus, MERCI DE VOTRE COMPRÉHENSION || RÉF ANNONCE ST-JEAN-ST-GENIES-VIP* - MAISON VENDUE LIBRE, VISITES PRIORITAIRES organisées. PAS PLUS DE PHOTOS, uniquement les vôtres en visites. 31240 - 31180 SECT ST-JEAN-ST-GENIES à prox à 6,5 km. Proche TLSE à 5,3 km de l'accès A62 L'UNION-CASTO, idem 5,3 km accès A62 + A61 L'UNION-CALICÉO (Sources Maps). - LOCALISATION EXACTE : - Á prox ST-GENIES, distance de la maison à ST-JEAN jusqu'à église de ST-GENIES 6,5 Km (Source Maps). Quartier LESTANG-ST-JEAN à 1,3 km de l'Eglise, 650 m Écoles - Crèche - Garderie, 700 m terminus ligne Bus 73 Tisséo 73, 1,1 km des 1ers commerces, 1,9 km Collège (Sources Maps). - RARE dans impasse sans vis-à-vis, ni construction en fond jardin, face au bois EXCELLENTE SITUATION. HORS COPRO, MSON R+1 MITOYENNE 100,09 M2 HAB métrés expert + Terrasse 31 M2 + Dépendances Abris jardin bâti 4x2 m + Appentis-Bûcher 5x2 m + Grenier en Combles 6,84 M2 au-dessus Gge 18.23 M2 comprenant cellier ouvert. 4-5 P sur parcelle supérieure à 470 M2 libérant gd jardin dominant face bois, piscine possible au centre suivant préconisations futur PLUI-H. - Á L'ÉTAGE, CHBRES avec possib aménager 1 chbre pr sénior au RDC ds actuel espace séj-sal. de 45,99 M2. RDC sol parquet Très Grand Passage Burlington, Cuis séparée aménagée équip 9,40 M2, Cheminée + insert 21 à 22 degrés constant l'hiver sans déclencher la pompe à chaleur, clim réversible l'été. AUCUN TRAVAUX, MENUISERIE DBLE VITRAGE PVC, Volets alu, Embellissements qualité du sol au plafond. EXCELLENTE Performance Énergétique C / GES. Entretien courant + Travaux depuis 2016 justifient ce PRIX AFFICHÉ FERME. - || RARE-PRIX FERME 259 000 EUR Honoraire charge vendeur || - Const. : 1974, TF 2024 : 1495 EUR, DPE C / GES A : 2025, Chauff. Indiv. BOIS + PAC, Parking privé devant garage : 1 - || Concept VIP*- *Valorisation Implication Prioritaire au service du vendeur, à l'écoute de l'acheteur || - Info par tél. Pour visiter CNI demandée avant signature du bon de visite. H. NOZERAN Consultant Prestataire Indépendant Immobilier TOULOUSE Région / Collaboration D-Habitat pour une étude exhaustive, expertise locale différente de l'agence immobilière classique ou du réseau mandataire. - Suivi pointu, stratégie de commercialisation sur mesure, multidiffusion d'annonces décuplées autour des codes postaux limitrophes du bien AV* élargissant son rayon de chalandise, renseignements et visites prioritaires. Étude comparative de financement offerte par notre partenaire habilité ORIAS associant toute offre d'achat rédigée par nos soins pour l'acheteur au prix convenu ou tout achat comptant justifiant de la provenance des fonds. Les informations sur les risques auxquels ce bien est exposé sont disponibles sur le site Géorisques : www.georisques.gouv.fr - Annonce rédigée et publiée par un Agent Mandataire -
97 m²
2 670 €
5
3
2
1
1
1
Consommations énergétiques
Logement économe
141
Logement énergivore (kWhEP/m2/an)
Émissions de gaz à effet de serre
Faible émission de GES
4
Forte émission de GES(kgeqCO2/m2/an)
Contact NOZERAN
Contacter gratuitement à l'aide du formulaire ci-dessous.