SECTEUR BARBATRE / T1 dans résidence récente proche Sciences
Reims 51100
0
Les charges de location sont prévisionnelles mensuelles avec régularisation annuelle.
La part des honoraires pour la réalisation de létat des lieux de ce bien est de 66 euros.
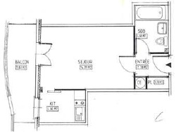
Référence G60. Idéalement situé pour les étudiants, à 2 pas de Science Po, proche du lycée Clémenceau. T1 de 29m2 en résidence sécurisée. Entrée en parquet avec placard, cuisine carrelée aménagée (meubles hauts et bas, plaque induction, four), séjour en parquet, salle de bains carrelée avec WC, balcon. Chauffage individuel électrique. Loyer HC : 440.00EUR/Mois - Charges : 40.00EUR/Mois - TOM : 11.00EUR/Mois - Dépôt de garantie : 440.00EUR - Frais d'agence : 308.00EUR. Disponible le 17/03/2026. Retrouvez toutes nos offres sur notre site www.marcille-immobilier.com
29 m²
1
308 %
17/03/2026
40 € / mois
Oui
Oui (55 lots)
Consommations énergétiques
Logement économe
243
Logement énergivore (kWhEP/m2/an)
Émissions de gaz à effet de serre
Faible émission de GES
11
Forte émission de GES(kgeqCO2/m2/an)
Contact Marcille Immobilier
Contacter gratuitement à l'aide du formulaire ci-dessous.