Secteur Nonneville - Beau 3 pièces avec 2 chambres et balcon - Cave et parking box
Aulnay-sous-Bois 93600
0
Nicolas BORGE vous propose ce bien :
Aulnay-sous-Bois ? Secteur Nonneville
Valeur Immo Paris vous propose ce bel appartement T3 situé au 1?? étage d'une petite copropriété parfaitement entretenue, à faibles charges.
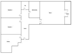
D'une distribution idéale, ce bien lumineux se compose de :
- Une entrée avec rangements,
- Un grand séjour ouvrant sur balcon,
- Une cuisine indépendante fonctionnelle,
- Deux belles chambres,
- Une salle de bains avec baignoire,
- Et un WC séparé.
En très bon état général, l'appartement ne nécessite aucun travaux.
Une cave et un box fermé en sous-sol complètent l'ensemble.
Un bien agréable à vivre, idéal pour un jeune couple ou une famille, dans un secteur calme et recherché de Nonneville.
Contact : Nicolas Borge ? Valeur Immo ParisnLes informations sur les risques auxquels ce bien est exposé sont disponibles sur le site Géorisques : www.georisques.gouv.fr
73 m²
3 425 €
25 m²
3
2
1
1
1
1991
Sud
Nord
Oui
Consommations énergétiques
Logement économe
214
Logement énergivore (kWhEP/m2/an)
Émissions de gaz à effet de serre
Faible émission de GES
6
Forte émission de GES(kgeqCO2/m2/an)
Contact Borge
Contacter gratuitement à l'aide du formulaire ci-dessous.