Goodshowcase
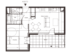
Vente appartement 2 pièces

Vente appartement 2 pièces
255 000 €

Contact Matesa Immobilier

Contacter gratuitement à l'aide du formulaire ci-dessous.


Afficher le téléphone


Annonces similaires

Vente appartement

Ségny 01170 - 0

249 000 €

...Les logements sont dotés de beaux espaces extérieurs, balcon, terrasse ou jardin...

Voir l'annonce

Vente appartement

Ségny 01170 - 0

285 000 €

...Les logements sont dotés de beaux espaces extérieurs, balcon, terrasse ou jardin...

Voir l'annonce

Vente appartement

Ségny 01170 - 0

249 000 €

...Il comprend une entrée avec placard, une salle de bains, ainsi qu'une agréable pièce de vie se...

Voir l'annonce

Vente appartement

Ségny 01170 - 0

285 000 €

...Il comprend une entrée avec placard, une lumineuse pièce de vie de 22m² se prolongeant sur un...

Voir l'annonce

Vente appartement

Ségny 01170 - 0

259 000 €

...Nous avons le plaisir de vous présenter ce superbe programme neuf situé à Ségny 01170, offrant un...

Voir l'annonce