SEGNY 01170 - VILLA NEUVE T5 DE 117M2 AVEC GARAGE + TERRASSE
Ségny 01170
0
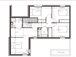
SEGNY 01170 Livraison 2026 - Villa neuve T5 de 117m2 avec deux jardins, deux terrasse et garage. La villa est composée au rdc : une entrée, une salle d'eau, un WC iinvité avec lave-main, une cuisine équipée ouverte sur la grande pièce de vie avec un accès à la première terrasse et au premier jardin privatif, un cellier avec accès à la deuxième terrasse et un garage fermé. A l'étage : un dégagement, une salle de bain, trois grandes chambres avec placard intégré, une suite parentale avec dressing et salle d'eau avec WC. Livraison 2026 MATESA IMMOBILIER, agence spécialiste du Pays de Gex, Vente et achat maison SEGNY 01170. 'Les informations sur les risques auxquels ce bien est exposé sont disponibles sur le site Géorisques http://www.georisques.gouv.fr'.
117 m²
5 974 €
5
4
1
2
2
4
30/12/2027
2025
1
2
Consommations énergétiques
Logement économe
80
Logement énergivore (kWhEP/m2/an)
Émissions de gaz à effet de serre
Faible émission de GES
8
Forte émission de GES(kgeqCO2/m2/an)
Contact Matesa Immobilier
Contacter gratuitement à l'aide du formulaire ci-dessous.