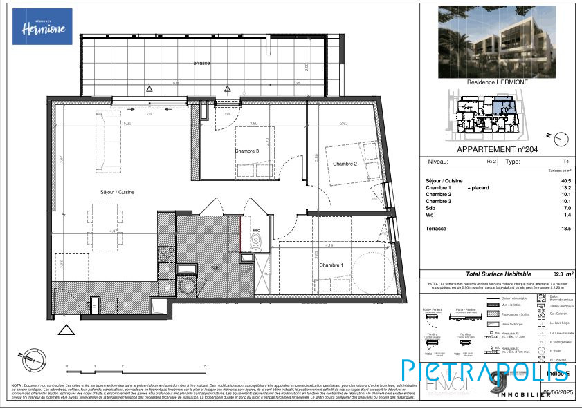
SÈTE - RÉSIDENCE HERMIONE : Au rez de chaussée, Appartement T4 83,2m², terrasse 52m², parking
Comprenant : Séjour/Cuisine donnant sur la terrasse, 3 chambres, salle de bain, WC séparés.
Résidence proposant des appartements allant du T3 au T4 avec terrasse ou jardin, ascenseur et place de parking.
Les Prestations : Les murs et plafonds sont recouverts d'une peinture lisse, offrant une finition impeccable. La grande baie vitre?e dans le se?jour permet une luminosite? naturelle optimale. Une large se?lection de fai?ences et carrelages vous est propose?e. L'appareillage e?lectrique offre un choix de coloris pour les interrupteurs. La porte d'entre?e dispose d'une serrure de su?rete? 3 points pour une se?curite? maximale. Les portes de placard sont disponibles en plusieurs coloris. Les salles de bain sont e?quipe?es d'un meuble avec tiroirs (coloris au choix), d'un miroir re?troe?claire? et d'un se?che-serviettes. Les terrasses spacieuses sont e?quipe?es d'un point d'eau, d'une prise e?lectrique et d'un e?clairage. Des celliers exte?rieurs en bardage bois (ou e?quivalent) sont propose?s sur les terrasses situe?es au R+2 et R+3. Les jardins privatifs sont plante?s pour un cadre de vie verdoyant. Chaque appartement dispose d'une production d'eau chaude individuelle, tout comme le chauffage. L'ame?nagement exte?rieur est paysage? sur une zone boise?e pre?serve?e de plus de 300 m2. La re?sidence est se?curise?e par un portail automatique, un digicode et un badge d'entre?e. La re?sidence est conforme a? la re?glementation thermique RT2012.
Proche de toutes commodités
Honoraires à la charge du vendeur. Dans une copropriété de 51 lots. Aucune procédure n'est en cours. Non soumis au DPE. Les informations sur les risques auxquels ce bien est exposé sont disponibles sur le site Géorisques : georisques.gouv.fr.